Toggle navigation
Δι@ύγεια
Ελληνική Νομοθεσία (Φ.Ε.Κ.)
Προκηρύξεις και Προμήθειες
Πρακτικά της Βουλής
Ανάλυση
GR
EN
Tweet
Αναζήτηση στη Δι@ύγεια για:
1. ΕΚΔΟΣΗ ΠΕΚ ΓΙΑ ΤΗΝ ΑΔΕΙΑ 9/2018 ΚΑΤΕΔΑΦΙΣΗ ΙΣΟΓΕΙΩΝ GARAGE, ΙΣΟΓΕΙΑΣ ΑΠΟΘΗΚΗΣ & ΤΜΗΜΑΤΟΣ ΟΡΟΦΟΥ ΤΟΥ TCAOUCEV ALEXANDAR ΣΤΗΝ ΘΕΣΗ ΡΑΧΗ ΣΤΗΝ ΚΑΛΛΙΟΠΗ
https://diavgeia.gov.gr/decision/view/6ΜΛ5ΩΛΘ-2ΦΘ
Δήμος Λήμνου
ΠΟΛΕΟΔΟΜΙΑ
2018-11-15
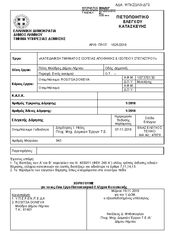
2. ΠΙΣΤΟΠΟΙΗΤΙΚΟ ΕΛΕΓΧΟΥ ΚΑΤΑΣΚΕΥΗΣ - ΚΑΤΕΔΑΦΙΣΗ ΤΜΗΜΑΤΟΣ ΙΣΟΓΕΙΑΣ ΑΠΟΘΗΚΗΣ & ΙΣΟΓΕΙΟΥ ΣΤΕΓΑΣΤΡΟΥ - ROSITSA DONEVA - ΜΟΥΔΡΟΣ
https://diavgeia.gov.gr/decision/view/ΨΠΚΖΩΛΘ-ΔΓ0
Δήμος Λήμνου
ΠΟΛΕΟΔΟΜΙΑ
2018-11-19
3. ΑΠΟΦΑΣΗ ΕΠΙΒΟΛΗΣ ΠΡΟΣΤΙΜΩΝ ΓΙΑ ΑΥΘΑΙΡΕΤΕΣ ΚΑΤΑΣΚΕΥΕΣ - ΣΑΚΑΡΙΚΟΣ ΚΩΝΣΤΑΝΤΙΝΟΣ - ΑΓΙΟΣ ΔΗΜΗΤΡΙΟΣ
https://diavgeia.gov.gr/decision/view/756ΕΩΛΘ-ΥΡ1
Δήμος Λήμνου
ΠΟΛΕΟΔΟΜΙΑ
2018-12-03
4. ΑΠΟΦΑΣΗ ΕΠΙΒΟΛΗΣ ΠΡΟΣΤΙΜΩΝ ΓΙΑ ΑΥΘΑΙΡΕΤΕΣ ΚΑΤΑΣΚΕΥΕΣ - ΜΙΧΑΚΗΣ ΙΩΑΝΝΗΣ - ΑΓΙΟΣ ΔΗΜΗΤΡΙΟΣ
https://diavgeia.gov.gr/decision/view/6ΡΨΗΩΛΘ-Μ3Β
Δήμος Λήμνου
ΠΟΛΕΟΔΟΜΙΑ
2018-12-03
5. ΑΠΟΦΑΣΗ ΕΠΙΒΟΛΗΣ ΠΡΟΣΤΙΜΩΝ ΓΙΑ ΑΥΘΑΙΡΕΤΕΣ ΚΑΤΑΣΚΕΥΕΣ - ΜΙΧΑΚΗΣ ΙΩΑΝΝΗΣ ΚΑΙ ΣΑΚΑΡΙΚΟΣ ΚΩΝΣΤΑΝΤΙΝΟΣ - ΑΓΙΟΣ ΔΗΜΗΤΡΙΟΣ
https://diavgeia.gov.gr/decision/view/ΨΑ4ΝΩΛΘ-ΗΝ7
Δήμος Λήμνου
ΠΟΛΕΟΔΟΜΙΑ
2018-12-03
6. ΑΠΟΦΑΣΗ ΕΠΙΒΟΛΗΣ ΠΡΟΣΤΙΜΩΝ ΓΙΑ ΑΥΘΑΙΡΕΤΕΣ ΚΑΤΑΣΚΕΥΕΣ - ΠΑΠΑΚΛΩΝΑΡΗ ΑΝΝΑ - ΚΟΝΤΙΑΣ
https://diavgeia.gov.gr/decision/view/9ΠΓΓΩΛΘ-ΥΟΔ
Δήμος Λήμνου
ΠΟΛΕΟΔΟΜΙΑ
2018-12-05
7. ΑΠΟΦΑΣΗ ΔΙΑΓΡΑΦΗΣ ΠΡΟΣΤΙΜΩΝ WIND ΕΛΛΑΣ ΤΗΛΕΠΙΚΟΙΝΩΝΙΕΣ Α.Ε.Β.Ε.
https://diavgeia.gov.gr/decision/view/6ΖΑΥΩΛΘ-ΦΚ5
Δήμος Λήμνου
ΠΟΛΕΟΔΟΜΙΑ
2018-12-05
8. ΑΝΑΣΤΟΛΗ ΕΙΣΠΡΑΞΗΣ ΒΕΒΑΙΩΘΕΝΤΩΝ ΠΡΟΣΤΙΜΩΝ - ΚΑΛΑΙΤΖΗΣ ΑΝΔΡΕΑΣ - ΚΑΡΠΑΣΙ
https://diavgeia.gov.gr/decision/view/6ΥΧΕΩΛΘ-ΒΦΠ
Δήμος Λήμνου
ΠΟΛΕΟΔΟΜΙΑ
2018-12-11
9. ΠΙΣΤΟΠΟΙΗΤΙΚΟ ΕΛΕΓΧΟΥ ΚΑΤΑΣΚΕΥΗΣ - ΕΥΑΓΓΕΛΙΑ ΓΡΗΓΟΡΙΟΥ - ΜΥΡΙΝΑ
https://diavgeia.gov.gr/decision/view/6ΣΝΖΩΛΘ-ΒΔΡ
Δήμος Λήμνου
ΠΟΛΕΟΔΟΜΙΑ
2018-12-19
10. ΑΠΟΠΕΡΑΤΩΣΗ ΟΙΚΟΔΟΜΙΚΩΝ ΕΡΓΑΣΙΩΝ - ΓΡΗΓΟΡΙΟΥ ΕΥΑΓΓΕΛΙΑ - ΜΥΡΙΝΑ
https://diavgeia.gov.gr/decision/view/66Γ7ΩΛΘ-ΤΜΘ
Δήμος Λήμνου
ΠΟΛΕΟΔΟΜΙΑ
2018-12-20
Περισσότερα αποτελέσματα
Επιστροφή στην κορυφή
Αναζήτηση στη Δι@ύγεια
Αναζήτηση
Έτος από
2026
2025
2024
2023
2022
2021
2020
2019
2018
2017
2016
2015
2014
2013
2012
2011
2010
Εώς
2026
2025
2024
2023
2022
2021
2020
2019
2018
2017
2016
2015
2014
2013
2012
2011
2010
Οργανισμός
Υπογράφων
Τύπος απόφασης
(ΠΡΑΞΗ ΤΗΣ ΠΕΡ. 19, ΠΑΡ. 4 ΑΡΘΡΟΥ 2 Ν. 3861/2010 )-Έγκριση και τροποποίηση χωροταξικών και ρυμοτομικών σχεδίων
(ΠΡΑΞΗ ΤΗΣ ΠΕΡ. 19, ΠΑΡ. 4 ΑΡΘΡΟΥ 2 Ν. 3861/2010 )-Καθορισμός αρχαιολογικών χώρων
(ΠΡΑΞΗ ΤΗΣ ΠΕΡ. 19, ΠΑΡ. 4 ΑΡΘΡΟΥ 2 Ν. 3861/2010 )-Καθορισμός βιομηχανικών ζωνών
(ΠΡΑΞΗ ΤΗΣ ΠΕΡ. 19, ΠΑΡ. 4 ΑΡΘΡΟΥ 2 Ν. 3861/2010 )-Καθορισμός ή τροποποίηση όρων δόμησης
(ΠΡΑΞΗ ΤΗΣ ΠΕΡ. 19, ΠΑΡ. 4 ΑΡΘΡΟΥ 2 Ν. 3861/2010 )-Καθορισμός λατομικών ζωνών
(ΠΡΑΞΗ ΤΗΣ ΠΕΡ. 19, ΠΑΡ. 4 ΑΡΘΡΟΥ 2 Ν. 3861/2010 )-Καθορισμός χρήσης γης παραχωρούμενου δημόσιου κτήματος
(ΠΡΑΞΗ ΤΗΣ ΠΕΡ. 19, ΠΑΡ. 4 ΑΡΘΡΟΥ 2 Ν. 3861/2010 )-Προσδιορισμός ή τροποποίηση ορίων οικισμού και έγκριση της μεταφοράς αυτού
(ΠΡΑΞΗ ΤΗΣ ΠΕΡ. 19, ΠΑΡ. 4 ΑΡΘΡΟΥ 2 Ν. 3861/2010 )-Σύνταξη και έγκριση Ζωνών Οικιστικού Ελέγχου (ΖΟΕ)
(ΠΡΑΞΗ ΤΗΣ ΠΕΡ. 19, ΠΑΡ. 4 ΑΡΘΡΟΥ 2 Ν. 3861/2010 )-Χορήγηση, αναστολή χορήγησης, τροποποίηση οικοδομικών αδειών
(ΠΡΑΞΗ ΤΗΣ ΠΕΡ. 19, ΠΑΡ. 4 ΑΡΘΡΟΥ 2 Ν. 3861/2010 )- Καθορισμός αιγιαλού, παραλίας, λιμνών, ποταμών, ρεμάτων και χειμάρρων,
(ΠΡΑΞΗ ΤΗΣ ΠΕΡ. 19, ΠΑΡ. 4 ΑΡΘΡΟΥ 2 Ν. 3861/2010 )- Καθορισμός εθνικών δρυμών, δασών και δασικών εκτάσεων
(ΠΡΑΞΗ ΤΗΣ ΠΕΡ. 19, ΠΑΡ. 4 ΑΡΘΡΟΥ 2 Ν. 3861/2010 )- Παραχώρηση δημόσιων και δημοτικών κτημάτων
(ΠΡΑΞΗ ΤΗΣ ΠΕΡ. 19, ΠΑΡ. 4 ΑΡΘΡΟΥ 2 Ν. 3861/2010 )- Σύνταξη και έγκριση πολεοδομικών μελετών και Γενικού Πολεοδομικού σχεδίου
(ΠΡΑΞΗ ΤΗΣ ΠΕΡ. 19, ΠΑΡ. 4 ΑΡΘΡΟΥ 2 Ν. 3861/2010 )- Χαρακτηρισμός εκτάσεων ως αναδασωτέων
(ΠΡΑΞΗ ΤΗΣ ΠΕΡ. 19, ΠΑΡ. 4 ΑΡΘΡΟΥ 2 Ν. 3861/2010 )- Χαρακτηρισμός κτιρίων ως διατηρητέων και αποχαρακτηρισμών αυτών.
(ΠΡΑΞΗ ΤΗΣ ΠΕΡ. 19, ΠΑΡ. 4 ΑΡΘΡΟΥ 2 Ν. 3861/2010 )- Χωροθέτηση
AΠΟΔΟΧΗ ΔΩΡΕΑΣ – ΣΥΜΒΑΣΗ ΠΟΛΙΤΙΣΤΙΚΗΣ ΧΟΡΗΓΙΑΣ
TEST ENGLISH ΜΕΤΑΤΑΞΗ
ΑΘΩΩΤΙΚΗ ΠΕΙΘΑΡΧΙΚΗ ΑΠΟΦΑΣΗ
ΑΘΩΩΤΙΚΗ ΠΕΙΘΑΡΧΙΚΗ ΑΠΟΦΑΣΗ
ΑΛΛΗ ΠΡΑΞΗ ΑΝΑΠΤΥΞΙΑΚΟΥ ΝΟΜΟΥ
ΑΝΑΘΕΣΗ ΕΡΓΩΝ / ΠΡΟΜΗΘΕΙΩΝ / ΥΠΗΡΕΣΙΩΝ / ΜΕΛΕΤΩΝ
ΑΝΑΘΕΣΗ ΠΡΟΜΗΘΕΙΑΣ / ΥΠΗΡΕΣΙΩΝ
ΑΝΑΛΗΨΗ ΥΠΟΧΡΕΩΣΗΣ
ΑΝΤΙΚΑΤΑΣΤΑΣΗ – ΠΑΥΣΗ Γ.Γ. - ΜΕΛΩΝ ΣΥΛΛΟΓΙΚΩΝ ΟΡΓΑΝΩΝ
ΑΠΟΔΟΧΗ ΠΑΡΑΙΤΗΣΗΣ
ΑΠΟΛΟΓΙΣΜΟΣ
ΑΠΟΦΑΣΗ ΕΝΑΡΞΗΣ ΠΑΡΑΓΩΓΙΚΗΣ ΛΕΙΤΟΥΡΓΙΑΣ ΕΠΕΝΔΥΣΗΣ
ΓΝΩΜΟΔΟΤΗΣΕΙΣ - ΠΡΑΚΤΙΚΑ ΝΟΜΙΚΟΥ ΣΥΜΒΟΥΛΙΟΥ ΤΟΥ ΚΡΑΤΟΥΣ
ΓΝΩΜΟΔΟΤΗΣΗ
ΔΑΠΑΝΗ
ΔΗΜΟΣΙΑ ΠΡΟΤΥΠΑ ΕΓΓΡΑΦΑ
ΔΙΑΘΕΣΙΜΟΤΗΤΑ
ΔΙΑΚΗΡΥΞΗ, ΚΑΤΑΚΥΡΩΣΗ, ΑΝΑΘΕΣΗ ΔΗΜΟΣΙΑΣ ΣΥΜΒΑΣΗΣ
ΔΙΟΡΙΣΜΟΣ
ΔΙΟΡΙΣΜΟΣ
ΔΙΥΠΟΥΡΓΙΚΕΣ ΑΠΟΦΑΣΕΙΣ
ΔΩΡΕΑ - ΕΠΙΧΟΡΗΓΗΣΗ
ΔΩΡΕΑ, ΕΠΙΧΟΡΗΓΗΣΗ, ΠΑΡΑΧΩΡΗΣΗ ΧΡΗΣΗΣ
ΕΓΚΡΙΣΗ ΔΑΠΑΝΗΣ
ΕΓΚΡΙΣΗ ΠΡΟΥΠΟΛΟΓΙΣΜΟΥ
ΕΓΚΥΚΛΙΟΣ
ΕΓΚΥΚΛΙΟΣ
ΕΚΘΕΣΗ ΑΠΟΤΙΜΗΣΗΣ ΓΙΑ ΤΗΝ ΚΑΤΑΣΤΑΣΗ ΤΗΣ ΥΦΙΣΤΑΜΕΝΗΣ ΝΟΜΟΘΕΣΙΑΣ
ΕΠΙΤΡΟΠΙΚΟ ΕΝΤΑΛΜΑ
ΙΣΟΛΟΓΙΣΜΟΣ
ΙΣΟΛΟΓΙΣΜΟΣ – ΑΠΟΛΟΓΙΣΜΟΣ
ΚΑΘΟΡΙΣΜΟΣ ΑΜΟΙΒΩΝ/ΑΠΟΖΗΜΙΩΣΕΩΝ
ΚΑΝΟΝΙΣΤΙΚΗ ΠΡΑΞΗ
ΚΑΤΑΚΥΡΩΣΗ
ΚΥΑ (ΚΟΙΝΗ ΥΠΟΥΡΓΙΚΗ ΑΠΟΦΑΣΗ )
ΛΟΙΠΕΣ ΑΤΟΜΙΚΕΣ ΔΙΟΙΚΗΤΙΚΕΣ ΠΡΑΞΕΙΣ
ΛΟΙΠΕΣ ΑΤΟΜΙΚΕΣ ΔΙΟΙΚΗΤΙΚΕΣ ΠΡΑΞΕΙΣ
ΛΟΙΠΕΣ ΚΑΝΟΝΙΣΤΙΚΕΣ ΠΡΑΞΕΙΣ
ΛΥΣΗ ΣΧΕΣΗΣ
ΛΥΣΗ ΣΧΕΣΗΣ
ΝΟΜΟΣ
ΝΟΜΟΣ
ΟΡΙΣΤΙΚΟΠΟΙΗΣΗ ΠΛΗΡΩΜΗΣ
ΠΑΡΑΧΩΡΗΣΗ ΧΡΗΣΗΣ ΠΕΡΙΟΥΣΙΑΚΩΝ ΣΤΟΙΧΕΙΩΝ
ΠΑΡΑΧΩΡΗΣΗΣ ΧΡΗΣΗΣ ΔΗΜΟΣΙΑΣ ΠΕΡΙΟΥΣΙΑΣ
ΠΕΡΙΛΗΨΗ ΔΙΑΚΗΡΥΞΗΣ
ΠΙΝΑΚΑΣ ΕΠΙΤΥΧΟΝΤΩΝ, ΔΙΟΡΙΣΤΕΩΝ, ΕΠΙΛΑΧΟΝΤΩΝ
ΠΙΝΑΚΕΣ ΕΠΙΤΥΧΟΝΤΩΝ, ΔΙΟΡΙΣΤΕΩΝ & ΕΠΙΛΑΧΟΝΤΩΝ
ΠΡΑΚΤΙΚΑ (Νομικού Συμβουλίου του Κράτους)
ΠΡΑΞΕΙΣ ΧΩΡΟΤΑΞΙΚΟΥ - ΠΟΛΕΟΔΟΜΙΚΟΥ ΠΕΡΙΕΧΟΜΕΝΟΥ
ΠΡΑΞΗ ΑΝΑΠΤΥΞΙΑΚΗΣ ΝΟΜΟΘΕΣΙΑΣ
ΠΡΑΞΗ ΝΟΜΟΘΕΤΙΚΟΥ ΠΕΡΙΕΧΟΜΕΝΟΥ
ΠΡΑΞΗ ΝΟΜΟΘΕΤΙΚΟΥ ΠΕΡΙΕΧΟΜΕΝΟΥ (Σύνταγμα, άρθρο 44, παρ 1)
ΠΡΑΞΗ ΠΟΥ ΑΦΟΡΑ ΣΕ ΘΕΣΗ ΓΕΝΙΚΟΥ - ΕΙΔΙΚΟΥ ΓΡΑΜΜΑΤΕΑ - ΜΟΝΟΜΕΛΕΣ ΟΡΓΑΝΟ
ΠΡΑΞΗ ΠΟΥ ΑΦΟΡΑ ΣΕ ΣΥΛΛΟΓΙΚΟ ΟΡΓΑΝΟ - ΕΠΙΤΡΟΠΗ - ΟΜΑΔΑ ΕΡΓΑΣΙΑΣ - ΟΜΑΔΑ ΕΡΓΟΥ - ΜΕΛΗ ΣΥΛΛΟΓΙΚΟΥ ΟΡΓΑΝΟΥ
ΠΡΑΞΗ ΥΠΑΓΩΓΗΣ ΕΠΕΝΔΥΣΕΩΝ
ΠΡΑΞΗ ΥΠΟΒΙΒΑΣΜΟΥ
ΠΡΑΞΗ ΥΠΟΥΡΓΙΚΟΥ ΣΥΜΒΟΥΛΙΟΥ
ΠΡΑΞΗ – ΓΝΩΜΟΔΟΤΗΣΗ ΑΝΕΞΑΡΤΗΤΗΣ ΑΡΧΗΣ
ΠΡΟΕΔΡΙΚΟ ΔΙΑΤΑΓΜΑ
ΠΡΟΚΗΡΥΞΗ ΠΛΗΡΩΣΗΣ ΘΕΣΕΩΝ
ΠΡΟΚΗΡΥΞΗ ΠΛΗΡΩΣΗΣ ΘΕΣΕΩΝ
ΠΡΟΫΠΟΛΟΓΙΣΜΟΣ
ΣΥΓΚΡΟΤΗΣΗ ΣΥΛΛΟΓΙΚΟΥ ΟΡΓΑΝΟΥ
ΣΥΜΒΑΣΕΙΣ : ΑΝΑΘΕΣΗ ΔΗΜΟΣΙΑΣ ΣΥΜΒΑΣΗΣ
ΣΥΜΒΑΣΕΙΣ : ΔΙΑΚΗΡΥΞΗ ΔΗΜΟΣΙΑΣ ΣΥΜΒΑΣΗΣ
ΣΥΜΒΑΣΕΙΣ : ΚΑΤΑΚΥΡΩΣΗ ΔΗΜΟΣΙΑΣ ΣΥΜΒΑΣΗΣ
ΣΥΜΒΑΣΗ
ΣΥΜΒΑΣΗ ΕΡΓΑΣΙΑΣ ΙΔΙΩΤΙΚΟΥ ΔΙΚΑΙΟΥ
ΣΥΜΒΑΣΗ ΕΡΓΟΥ
ΣΥΜΒΑΣΗ-ΠΡΑΞΕΙΣ ΑΝΑΠΤΥΞΙΑΚΩΝ ΝΟΜΩΝ
ΥΠΗΡΕΣΙΑΚΗ ΜΕΤΑΒΟΛΗ
ΥΠΟΥΡΓΙΚΗ ΑΠΟΦΑΣΗ
Tag
Visas
Αγορά ή διαθεση αυτοκινήτων
Άδειες
Άδειες κυκλοφορίας
Άδειες μηχανημάτων
Άδειες οδήγησης
Άδειες Προσωπικού Δήμων και Περιφερειών
Άδειες Φαρμάκων
Αεροπορικές συγκοινωνίες
Άθληση
Αθλητική νομοθεσία
Αθλητισμός
Αθωωτική Πειθαρχική Απόφαση
Αιγιαλός
Αιτήσεις θεραπείας
Αιτήσεις θεραπείας
Αλιεία
Αλλαγή διεύθυνσης
Αλλοδαποί στην Ελλάδα
ΑΝΑΓΓΕΛΙΑ ΕΝΑΡΞΗΣ ΛΕΙΤΟΥΡΓΙΑΣ ΣΧΟΛΩΝ & ΕΠΑΓΓΕΛΜΑΤΩΝ
Αναγνώριση εκτός γάμου γεννηθέντων τέκνων
Αναγνώριση τίτλων
Αναζήτηση εργασίας
Αναζήτηση πιστοποιητικών
Ανακλήσεις πράξεων παραχώρησης δημοσίων εκτάσεων
Ανανεώσιμες πηγές ενέργειας
Αναπηρία
Ανέγερση κατοικίας
Ανεργία
Ανθρώπινα δικαιώματα
Ανθρώπινο δυναμικό
Άνθρωποι, Κοινότητες και Διαβίωση
Αντικατάσταση μελών Δ.Σ
Ανώνυμες Εταιρείες
Ανώτατη εκπαίδευση
Αξιοποίηση φυσικών πόρων
Απαγόρευση κυνηγιού
Απαλλοτριώσεις
Απασχόληση στο δημόσιο
Αποζημιώσεις πληγέντων από φυσικές καταστροφές
Απόκτηση ελληνικής ιθαγένειας ομογενών από χώρες της πρώην ΕΣΣΔ βάσει του Ν.2790/2000
Απόκτηση κατοικίας
Απονομή Εμπορικού Σήματος
Αποσπάσεις
ΑΠΟΦΑΣΕΙΣ ΛΙΜΕΝΙΚΩΝ ΤΑΜΕΙΩΝ
Αποφάσεις Περιφερειακού Συμβουλίου / Οικονομικής Επιτροπής Περιφέρειας
ΑΠΟΦΑΣΗ ΜΑΤΑΙΩΣΗΣ ΔΙΑΓΩΝΙΣΜΟΥ
Απόφαση Οικονομικής Επιτροπής Δήμου
Απροστάτευτα παιδιά
Απώλεια - Ανάκτηση Ελληνικής Ιθαγένειας
Αργίες
Άρδευση
Αριθμός Φορολογικού Μητρώου
Άρση κυκλοφορίας Αυτ/των
Αρχαιολογικοί χώροι
Αρχαιότητες
Αρωγή
Άσκηση επαγγέλματος
Αστικές συγκοινωνίες
Αστικό Δίκαιο
Αστυνομία
Αστυνομική ταυτότητα
Ασφάλεια και υγεία των εργαζομένων
Ασφάλιση δημοσίου
Ασφάλιση ΙΚΑ
Ασφάλιση μετοχικών ταμείων
Ασφάλιση ΟΑΕΕ
Ασφάλιση ΟΑΠ - ΔΕΗ
Ασφάλιση ΟΓΑ
Ασφάλιση Ταμείο Νομικών και ΚΕΑΔ
Ασφάλιση ΤΑΞΥ
Ασφάλιση ΤΑΠΟΤΕ
Ασφάλιση ΤΕΑΥΕΚ
Ασφάλιση ΤΣΑΥ
Ασφάλιση ΤΣΜΕΔΕ
Ασφαλιστικές εισφορές στο ΤΕΑΔΥ
Ασφαλιστικές παροχές
Αυθαίρετα
Βάφτιση
Βεβαιώσεις
Βεβαιώσεις σπουδών
Βεβαίωση και είσπραξη εσόδων των ΟΤΑ-Διευκόλυνση οφειλετών
Βιβλιάρια υγείας
Βιβλιοθήκες
Βιολογικά Προϊόντα
Βιομηχανία
Γ Πράξη οικονομικού ενδιαφέροντος
Γάμος
Γενικό Πρόγραμμα «Αλληλεγγύη και Διαχείριση Μεταναστευτικών Ροών» Περιόδου 2007-2013
Γενικός Γραμματέας Περιφέρειας
Γέννηση
Γεωργία
Γεωργικά Μηχανήματα
Γεωργική εκπαίδευση
Γνήσιο υπογραφής
Δακτύλιος
Δάνεια
Δάνεια, οφειλές και συνάλλαγμα
Δάση
Δασοκομία
Δημαρχιακή Επιτροπή
Δήμαρχος
Δημόσια διοίκηση
Δημόσια τάξη
Δημόσια Τάξη και Άμυνα
Δημόσιες συμβάσεις
Δημόσιες Συμβάσεις Έργων
Δημόσιες Συμβάσεις Μελετών
Δημόσιες Συμβάσεις Προμηθειών
Δημόσιες Συμβάσεις Υπηρεσιών
Δημοτικό Συμβούλιο
Δημοτικοί Φόροι, τέλη, εισφορές και άλλα ίδια έσοδα ΟΤΑ
Δημοτολόγια
Διαβατήρια
Διαγραφή οχημάτων
Διαζύγιο
Διαθεσιμότητα Υπαλλήλου
ΔΙΑΚΗΡΥΞΗ
Διαπίστωση Ελληνικής Ιθαγένειας από γέννηση
ΔΙΑΠΙΣΤΩΤΙΚΗ ΠΡΑΞΗ
Διαπολιτισμική εκπαίδευση
Διασκέδαση
Διασκέδαση και ψυχαγωγία
Διατηρητέα
Διατροφή
Διάφορα έγγραφα
Διαχείριση αποβλήτων
Διαχείριση επικοιστικών εκτάσεων
Διαχείριση κυκλοφορίας
Διαχείριση περιουσίας ΟΤΑ
Διδακτορικές σπουδές
Διδασκαλία ξένων γλωσσών
Διεθνείς σχέσεις
Διεθνείς σχέσεις (γενικά)
Διεθνείς Υποθέσεις και Ευρωπαϊκή Ένωση
Διενέργεια διαγωνισμού
Δικαιοσύνη
Δικαιοσύνη και δίκαιο
Δικαιοσύνη, Πολιτεία και Δημόσια Διοίκηση
Δικαστήρια
Δικαστικά έξοδα
Δικαστικές αποφάσεις
Δίκες και δικάσιμοι
Δίκτυα Δήμων και Περιφερειών
Διοικητικά επαγγέλματα
Διοικητικές διαδικασίες
Διορισμοί υπαλλήλων
Διπλωματική προστασία
Δωρεά
Δωρεά οργάνων
Δωρεές αυτοκ/των προς υπηρεσίες
Εγκαταστάσεις ψυχαγωγίας
Έγκλημα
ΕΓΚΥΚΛΙΟΣ (Α.Ν.) ΑΝΑΠΤΥΞΙΑΚΟΥ ΝΟΜΟΥ
Εθελοντισμός
Εθνικά Κληροδοτήματα
Εθνικά Κληροδοτήματα
Ειδικές κατηγορίες ασφάλισης
Ειδική αγωγή
Ειδική διοικητική προσφυγή
Εισαγωγές - Εξαγωγές ζώντων ζώων και ζωικών προϊόντων
Εισαγωγή στην ανώτατη εκπαίδευση
Εισηγητής
Εισιτήρια
Εκδόσεις - Εκτυπώσεις
Εκκλησιαστική εκπαίδευση
Εκλογές
Εκλογές (γενικά)
Εκλογές-Θέματα Προβολής Συνδυασμών
Εκλογικές αποζημιώσεις
Εκλογικές προμήθειες
Εκλογική νομοθεσία
Εκλογικοί κατάλογοι
Εκμάθηση ξένων γλωσσών
Εκπαίδευση (γενικά)
Εκπαίδευση ενηλίκων
Εκπαίδευση και Έρευνα
Εκπαίδευση στην Ευρωπαϊκή Ένωση
Εκπαιδευτικά Ιδρύματα
Εκρηκτικές ύλες
Έλεγχοι και κυρώσεις
Έλεγχος συμπεριφοράς οδηγών
Έλληνες στο εξωτερικό
Ελληνική Αναπτυξιακή Συνεργασία
Εμβόλια
Εμπορευματικές μεταφορές
Εμπορικές άδειες
Εμπόριο
Ένδικα μέσα
Ενέργεια
Ενέργειες Διαφήμισης
Ενοικίαση κατοικίας
Ένοπλες δυνάμεις
Ένοπλες δυνάμεις και στρατολογία
Ενσωμάτωση δικαίου της ΕΕ
Ένταλμα πληρωμής
Εξοδα Παράστασης - Κίνησης ΟΤΑ
Εξοικονόμηση κατ’ Οίκον
Εξοπλισμός Γραφείου
Επαγγέλματα εκπαίδευσης
Επαγγέλματα εφαρμοσμένης μηχανικής
Επαγγέλματα θετικών επιστημών
Επαγγέλματα πληροφορικής
Επαγγέλματα υγείας
Επαγγελματικές άδειες
Επαγγελματική εκπαίδευση
Επαγγελματική κατάρτιση
Επαγγελματική στέγη
ΕΠΙΒΟΛΗΣ ΚΥΡΩΣΕΩΝ ΕΠΕΝΔΥΣΗΣ ΥΠΑΧΘΕΙΣΑΣ ΣΕ ΑΝΑΠΤΥΞΙΑΚΟ ΝΟΜΟ
Επιδόματα αναπηρίας
Επιδόματα ασθένειας
Επιδόματα ενοικίου
Επιδόματα και χρηματικά βοηθήματα
Επικοινωνία
Επικύρωση εγγράφων
Επιμόρφωση εκπαιδευτικών
Επισκευές
Επισκευή κατοικίας
Επιτροπές
Επιχειρηματική δραστηριότητα στην Ευρωπαϊκή Ένωση
Επιχειρηματικότητα
Επιχειρηματικότητα και Ανταγωνιστικότητα
Επιχειρήσεις Δήμων και Περιφερειών
Επιχειρησιακά προγράμματα
Επιχορηγήσεις επιχειρήσεων
Επιχορηγήσεις των ΟΤΑ α' και β΄ βαθμού από Κεντρικούς Αυτοτελείς Πόρους (ΚΑΠ)
Εποχιακά βοηθήματα
Εργασία στην Ανώτατη εκπαίδευση
Εργασία στην Ευρωπαϊκή Ένωση
Εργασία στην Πρωτοβάθμια και Δευτεροβάθμια εκπαίδευση
Εργασία, Ασφάλιση και Σύνταξη
Εργασιακά
Εργασιακά δικαιώματα
Εργασιακά έγγραφα
Εργασιακή εμπειρία
Εργατική κατοικία
Έρευνα (γενικά)
Ερευνητικά προγράμματα ή άλλα έργα
ΕΣΠΑ 2007-2013
Εσωτερική Μετακίνηση
Εσωτερική Μετακίνηση
Εύρεση εργασίας
Ευρωπαικά και Διεθνή Αναπτυξιακά Προγράμματα
Ευρωπαική Εβδομάδα Τοπικής Δημοκρατίας
Ευρωπαϊκή Ένωση
Ευρωπαϊκή Ένωση (γενικά)
Ευρωπαϊκή ιθαγένεια
Ευρωπαικός Όμιλος εδαφικής συνεργασίας - ΕΟΕΣ
Ευρώπη για τους πολίτες
Εφημερίδα της κυβέρνησης
Ζώα
Ηλεκτρική ενέργεια
Ηλεκτροδότηση
Ηλεκτρονική διακυβέρνηση
Ηλεκτρονική επικοινωνία
Ηλεκτρονική υποβολή
Ηλικία
Θάνατος
Θέατρα
Θέρμανση
Θέση σε κυκλοφορία αυτ/των
Ιδιωτική εκπαίδευση
Ιδρύματα Δήμων και Περιφερειών
Ίδρυση και λειτουργία επιχείρησης
Ιθαγένεια
Ιθαγένεια, μετανάστευση και κοινωνική ένταξη
Ινστιτούτα Επαγγελματικής Κατάρτισης
Καθορισμός αμοιβής Επιτροπών
Καλλιτεχνικά επαγγέλματα
Κανόνες υγιεινής
ΚΑΝΟΝΙΣΤΙΚΗ ΑΝΑΠΤΥΞΙΑΚΟΥ ΝΟΜΟΥ
ΚΑΝΟΝΙΣΤΙΚΗ Ν.3427/2005 Κεφάλαιο ΣΤ΄
Κατασκευές
Κατασκευές Δημοσίων Έργων
Καταστήματα Υγειονομικού Ενδιαφέροντος
Κατεδάφιση κτιρίων
Κατηγορίες εκπαίδευσης
Κατοικία
Καύσιμα
Κλάδοι οικονομικής δραστηριότητας
Κλείσιμο επιχείρησης
Κληρονομικό δίκαιο
Κοινωνικά επαγγέλματα
Κοινωνικές δομές από ΝΠΔΔ και επιχειρήσεις ΟΤΑ
Κοινωνική ασφάλιση
Κοινωνική ασφάλιση (γενικά)
Κοινωνική ένταξη
Κοινωνική πολιτική
Κοινωνική Πρόνοια
Κοινωνικός τουρισμός
Κτiριακές εγκαταστάσεις
Κτηματολόγιο
Κτηματολόγιο και οικόπεδα
Κτηνοτροφία
Κτηνοτροφία
Κτήση Ελληνικής Ιθαγένειας από γέννηση
Κυβέρνηση
Κύκλος ζωής
Κώδικας Βιβλίων και Στοιχείων
Κώδικας διοικητικής διαδικασίας
Κώδικας Οδικής Κυκλοφορίας
Λατομεία
Λειτουργία τηλεπικοινωνιών
Λεωφορεία και φορτηγά
Ληξιαρχεία
Ληξιαρχικές πράξεις γεγονότων εξωτερικού ελλήνων υπηκόων
Λιμενικές υποδομές
Λιμενικό σώμα
Λίμνες
Λογαριασμός Εσόδων Δημοσίων Επενδύσεων
Λοιπά επαγγέλματα
Λοιπά επιδόματα
Λοιπές Επιχορηγήσεις των ΟΤΑ α' και β΄ βαθμού
Λύση υπαλληλικής σχέσης
Μελέτες Δημοσίων Έργων
Μελέτες Ιδιωτικών Έργων
Μέλη Συμβουλίων
Μελισσοκομία
Μέσα και τύπος
Μέσα μαζικής μεταφοράς
Μέσα Μεταφοράς, Ταξίδια και Τουρισμός
Μεσοπρόθεσμο Πλαίσιο Δημοσιονομικής Στρατηγικής (ΜΠΔΣ)
Μεταβίβαση οχημάτων
Μεταδημότευση
Μετακινήσεις προσωπικού
Μεταλλεία
Μετανάστευση
Μετανάστευση - Θέματα για στερούμενους διαβατηρίου
Μετανάστευση-Ανακοινώσεις CION
Μετανάστευση-Αποφάσεις Συμβουλίου Ε.Ε. για τη μετανάστευση
Μετανάστευση-Βασικά έγγραφα πολιτικής Ε.Ε.
Μετανάστευση-Δικαιώματα και Υποχρεώσεις υπηκόων τρίτων χωρών
Μετανάστευση-Ειδική Βεβαίωση νόμιμης διαμονής για υπηκόους τρίτων χωρών
Μετανάστευση-Εκπροσώπηση υπηκόων τρίτων χωρών
Μετανάστευση-Εξωτερικές Σχέσεις Ε.Ε.
Μετανάστευση-Θέματα αδειών διαμονής για εργασία
Μετανάστευση-Θέματα άσκησης ανεξάρτητης οικονομικής δραστηριότητας και υψηλών επενδύσεων
Μετανάστευση-Θέματα εισδοχής υπηκόων τρίτων χωρών για επιστημονική έρευνα
Μετανάστευση-Θέματα εξαρτημένης εργασίας – Διαδικασία μετάκλησης – Εποχιακή απασχόληση – Αλιεργάτες
Μετανάστευση-Θέματα επί μακρόν διαμενόντων για υπηκόους τρίτων χωρών και δεκαετείς άδειες
Μετανάστευση-Θέματα οικογενειακής επανένωσης για υπηκόους τρίτων χωρών
Μετανάστευση-Θέματα σπουδών για υπηκόους τρίτων χωρών
Μετανάστευση-Κανονισμοί Ε.Ε. για τη μετανάστευση
Μετανάστευση-Κοινοτικές Οδηγίες για τη μετανάστευση
Μετανάστευση-Νομοθεσία για είσοδο και διαμονή υπηκόων τρίτων χωρών στην Ελληνική Επικράτεια
Μετανάστευση-Συμπεράσματα Ευρωπαϊκών Συμβουλίων για τη μετανάστευση
Μεταπτυχιακές σπουδές
Μετατάξεις
Μετατροπή επιχείρησης
Μεταφορές γενικά
Μετεγγραφές
Μητρώα Αρρένων
Μητρώα και δημοτολόγιο
Μητρώο αρρένων
Μηχανήματα
Μισθώματα
Μισθώματα
Μίσθωση ακινήτων
Μονογονεϊκή οικογένεια
Μουσεία
Ν/Δ. 416/1974 \"Περί Αναγκαιότητας ή μη Δημοσίου Κτήματος για Κάλυψη Δημοσίων Αναγκών\"
Ναυσιπλοΐα
Ναυτικά επαγγέλματα
Ναυτικά φυλλάδια
Ναυτική εκπαίδευση
Ναυτιλία
Νομικά επαγγέλματα
Νομικά Πρόσωπα Δημοσίου Δικαίου Δήμων
Νομική βοήθεια
Νομική εκπροσώπηση
Νομισματικό Πρόγραμμα
Νοσηλεία
Νοσήματα (Πουλερικών-Ψαριών-Μελισσών)
Νοσήματα ζώων
Νοσήματα ζώων (μεταδοτικά)
Ξένες γλώσσες
Ξένες γλώσσες (γενικά)
Ξενοδοχεία και εστιατόρια
Οδήγηση
Οδική ασφάλεια
ΟΔΙΚΟ ΔΙΚΤΥΟ
ΟΗΕ, ΟΑΣΕ, ΟΟΣΑ
Οικισμοί
Οικογένεια
Οικογενειακά επιδόματα
Οικογενειακές παροχές
Οικογενειακή κατάσταση
Οικογενειακό δίκαιο
Οικοδομές και κτίρια
Οικοδομικές άδειες
Οικονομία και Οικονομικά
Οικονομικά επαγγέλματα
Οικονομική ενίσχυση Συνδικαλιστικών Οργανώσεων
Οικονομικοί πόροι
Οικόπεδα
ΟΛΟΚΛΗΡΩΣΗ ΕΠΕΝΔΥΣΗΣ ΥΠΑΧΘΕΙΣΑΣ ΣΕ ΑΝΑΠΤΥΞΙΑΚΟ ΝΟΜΟ
Ομογένεια
Όπλα
Όπλα και εκρηκτικές ύλες
Οργανόγραμμα Υπουργείων
Οργάνωση & απλούστευση διαδικασιών
Οργάνωση δημοσίων φορέων
Οριοθετήσεις
Ορισμός Εκκαθαριστή
Όροι και συνθήκες
Ορυχεία
Οφειλές
Οχήματα
Οχήματα (γενικά)
Παρακρατήσεις υπέρ Συνδέσμων των ΟΤΑ
Παράταση εκτέλεσης έργου
Παροχή Εγγύησης Ελληνικού Δημοσίου
Παροχή υπηρεσιών
Πειθαρχικό Δίκαιο
Περιβάλλον και Φυσικοί Πόροι
Περιβάλλον-Οριοθέτηση δασικών εκτάσεων
Περιβαλλοντικά επαγγέλματα
Περιβαλλοντική Αδειοδότηση
Πινακίδες
Πινακοθήκες
Πιστοποιητικά
Πιστοποιητικά υγείας
Πληροφορία και Επικοινωνία
Πλοία
Ποινική δίωξη
Ποινικό δίκαιο
Ποινικό μητρώο
Πολεοδομία
Πολεοδομία και Κτηματολόγιο
Πολεοδομία και σχέδιο πόλης
Πολεοδομικές μελέτες
Πολιτεία και δημοκρατικοί θεσμοί
Πολιτικά Γραφεία
Πολιτισμός
Πολιτισμός και δημιουργία
Πολιτισμός και Ελεύθερος Χρόνος
Πολιτιστικοί χώροι (γενικά)
Πολιτογράφηση αλλογενών αλλοδαπών
Πολιτογράφηση ομογενών αλλοδαπών
Πολυτεκνία
Ποτάμια
Πράξεις επιχορηγήσεων εισφορών
Πράξεις καθορισμού αμοιβών μελών επιτροπής
Πράξεις συγκρότησης επιτροπών
Πρόγραμμα "Ένωση για τη Μεσόγειο"
Πρόγραμμα "Ψηφιακή Σύγκλιση"
Πρόγραμμα Δημοσίων Επενδύσεων
Πρόγραμμα Διοικητική Μεταρρύθμιση
Πρόγραμμα ΕΛΛΑΔΑ
Πρόγραμμα Θησέας
Πρόγραμμα κρατικής αναπτυξιακής βοήθεια-ΚΑΒ
Πρόγραμμα ΣΑΕ 055
Πρόγραμμα ΣΑΕ 355/8
Πρόγραμμα ΣΑΤΑ
Πρόγραμμα Στεγαστικής Αποκατάστασης Παλιννοστούντων ομογενών από χώρες της τέως Σοβιετικής Ένωσης
Πρόγραμμα στεγαστικής συνδρομής Ελλήνων Τσιγγάνων / ROMA
Προγραμματική σύμβαση
Προέγκριση ΣΑΕ - Συλλογικής Απόφασης Έργου
Προέγκριση ΣΑΕΠ- Συλλογικής Απόφασης Περιφερειών
Προέγκριση ΣΑΜ – Συλλογικής Απόφασης Μελετών.
Προέγκριση ΣΑΜΠ – Συλλογικής Απόφασης Μελετών Περιφέρειών
Προέγκριση ΣΑΝΑ – Συλλογικής Απόφασης Νομαρχιακής Αυτοδιοίκησης
Προέγκριση ΣΑΤΑ – Συλλογικής Απόφασης Τοπικής Αυτοδιοίκησης.
Προκηρύξεις
Προκηρύξεις θέσεων Προϊσταμένων
Προμήθειες
Προξενικές πράξεις
Προξενικές υποθέσεις
Προσκλήσεις υποβολής προτάσεων Ευρωπαίκού Ταμείου Ένταξης
Πρόσκληση Υποβολής Προτάσεων
Πρόσκληση Υποβολής Προτάσεων
Πρόσκληση Υποβολής Προτάσεων
Προσλήψεις
Προσλήψεις προσωπικού
Προστασία δεδομένων
Προστασία καταναλωτών
Προστασία περιβάλλοντος
Προστασία περιβάλλοντος (γενικά)
Πρόστιμα ΚΟΚ και τέλη ελεγχόμενης στάθμευσης
Προσχολική αγωγή
Προσωπικά στοιχεία
Προσωπικό - Διοικητικά
Προσωπικό Δημοτικής Αστυνομίας
Προσωπικό επιχειρήσεων
Προσωπικό ιδρυμάτων
Προσωπικό κοινωνικών δομών
Προσωπικό νομικών προσώπων δημοσίου δικαίου
Προσωπικό Συνδέσμων ΟΤΑ
Προσωπικό Φορέων Διαχείρισης Στερεών Αποβλήτων
Προυπολογισμός
Προϋπολογισμός ΟΤΑ
Πρωτοβάθμια και δευτεροβάθμια εκπαίδευση
Πτηνοτροφία
Πτυχία
Πυροσβεστική
Ρυάκια
Ρυθμίσεις κυκλοφορίας
Ρυθμίσεις οφειλών-πιστοληπτική πολιτική ΟΤΑ
Ρυμοτομία
Ρύπανση
ΣΑΕ - Συλλογική Απόφαση Έργου
ΣΑΕΠ- Συλλογική Απόφαση Περιφερειών
ΣΑΜ – Συλλογική Απόφαση Μελετών.
ΣΑΜΠ – Συλλογική Απόφαση Μελετών Περιφερειών
ΣΑΝΑ – Συλλογική Απόφαση Νομαρχιακής Αυτοδιοίκησης
ΣΑΤΑ – Συλλογική Απόφαση Τοπικής Αυτοδιοίκησης.
ΣΔΙΤ
Σιδηροδρομικές συγκοινωνίες
Σκάφη
Στάθμευση
Στρατιωτικές σχολές
Στρατιωτική θητεία
Στρατολογική νομοθεσία
Συγχώνευση επιχείρησης
Συλλογικές συμβάσεις εργασίας
Συλλογικές Συμβάσεις Εργασίας
Συμβούλιο Ιθαγένειας
Συμβούλιο της Ευρώπης
Σύμφωνο Συμβίωσης
Συνάλλαγμα
Σύνδεσμοι ΟΤΑ
Συνδρομή έντυπων και ηλεκτρονικών περιοδικών
Συνθήκη Σένγκεν
Σύνταγμα της Ελλάδας
Συντάξεις αναπηρίας
Συντάξεις γήρατος
Συντάξεις δημοσίου
Συντάξεις ειδικών κατηγοριών
Συντάξεις θανάτου
Συντάξεις ΙΚΑ
Συντάξεις μετοχικών ταμείων
Συντάξεις ΝΑΤ
Συντάξεις ΟΑΕΕ
Συντάξεις ΟΑΠ - ΔΕΗ
Συντάξεις ΟΓΑ
Συντάξεις πολυτέκνων
Συντάξεις Ταμείο Νομικών - ΚΕΑΔ
Συντάξεις ΤΑΠΟΤΕ
Συντάξεις ΤΕΑΥΕΚ
Συντάξεις ΤΣΑΥ
Συντάξεις ΤΣΜΕΔΕ
Σύνταξη
Συνταξιοδότηση
Συντήρηση κτιρίων
Συντήρηση Φωτοτυπικών Μηχανημάτων
Σύσταση Θέσεων
Σύσταση και λειτουργία εταιρίας
Σύστημα υγείας
Σφραγίδα Χάγης
Σχολεία
Σχολές μαθητείας ΟΑΕΔ
Ταμεία Επαγγελματικής Ασφάλισης
Ταξί
Ταξίδια
Ταξίδια και τουρισμός
Ταυτότητες
Τάφροι
Ταχυδρομικές Υπηρεσίες
Τέλη κυκλοφορίας
Τελωνεία
Τεχνικά επαγγέλματα
Τεχνικά θέματα
Τεχνικές σχολές
Τεχνική Βοήθεια
Τεχνική και επαγγελματική εκπαίδευση
Τεχνικός έλεγχος οχημάτων
Τεχνολογίες επικοινωνίας
Τεχνολογίες πληροφορικής
Τεχνολογίες πληροφορικής και επικοινωνίας
Τηλεπικοινωνιακά τέλη
Τηλεπικοινωνιακές συνδέσεις
Τηλεπικοινωνίες
Τηλεφωνική σύνδεση
Τοπική Αυτοδιοίκηση α΄ βαθμού
Τοπική Αυτοδιοίκηση β΄ βαθμού
Τουρισμός
ΤΡΟΠΟΠΟΙΗΣΗ ΕΠΕΝΔΥΣΗΣ ΥΠΑΧΘΕΙΣΑΣ ΣΕ ΑΝΑΠΤΥΞΙΑΚΟ ΝΟΜΟ
Τροποποίηση προυπολογισμού
Τρόφιμα και ποτά
Τυχερά παιχνίδια
Υγεία γενικά
Υγεία και Κοινωνική Μέριμνα
Υγεία και υγιεινή
Υγειονομική περίθαλψη
Υδατικοί πόροι
Ύδρευση και αποχέτευση
Υιοθεσία
Υιοθεσία
Υλοτομία
ΥΠΑΓΩΓΗ ΕΠΕΝΔΥΣΗΣ ΣΕ ΑΝΑΠΤΥΞΙΑΚΟ ΝΟΜΟ
Υπαίθρια διαφήμιση
Υπεραστικές συγκοινωνίες
Υπερωρίες Προσωπικού Ιδιωτικού Δικαίου στο Δημόσιο
Υπερωρίες υπαλλήλων
Υπηρεσίες
Υπηρεσίες πιστοποίησης
Υποβολή δικαιολογητικών για έκδοση εντάλματος πληρωμής
Υπόγεια ύδατα
Υποτροφίες
ΥΠΟΥΡΓΙΚΗ ΑΠΟΦΑΣΗ Ν.3427/2005 – ΥΠΑΓΩΓΗΣ ΣΕ ΑΝΑΠΤΥΞΙΑΚΟ ΝΟΜΟ
Φάρμακα
Φιλανθρωπία
Φοιτητικές παροχές
Φόροι
Φορολογία
Φορολογία εισοδήματος
Φορολογία επιχειρήσεων
Φορολογία και φόροι
Φορολογία κεφαλαίου
Φόρος Προστιθέμενης Αξίας
Φροντίδα παιδιών
Φυτά
Φυτοφάρμακα
Χείμαρροι
Χλωρίδα και πανίδα
Χορήγηση προκαταβολής
Χρηματοδοτήσεις Έργων Προγράμματος Δημοσίων Επενδύσεων
Χρηματοδότηση Προγράμματος Δημοσίων Επενδύσεων
Χρηματοπιστωτικοί οργανισμοί
Αναζήτηση
Έτη
2018
92
Όλα τα Έτη
Οργανισμοί
Δήμος Λήμνου
92