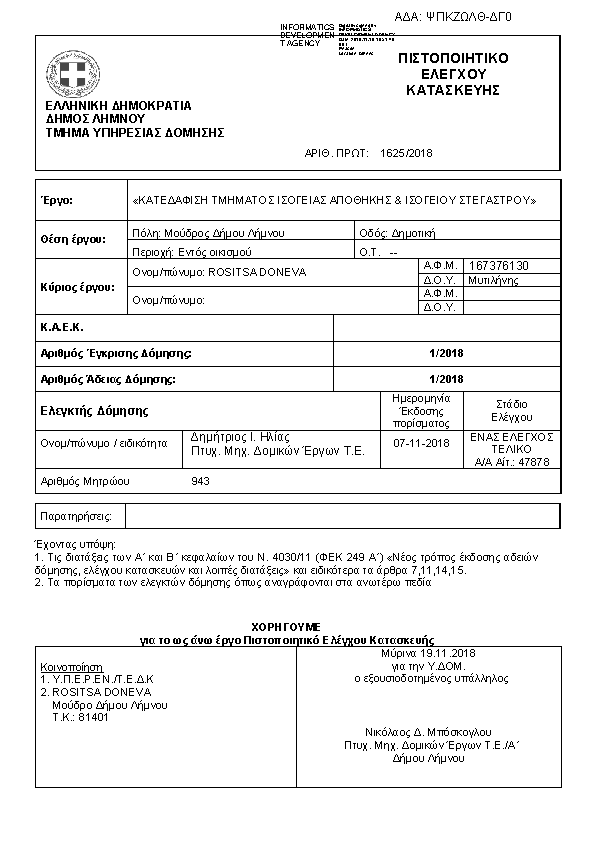
ΠΙΣΤΟΠΟΙΗΤΙΚΟ ΕΛΕΓΧΟΥ ΚΑΤΑΣΚΕΥΗΣ - ΚΑΤΕΔΑΦΙΣΗ ΤΜΗΜΑΤΟΣ ΙΣΟΓΕΙΑΣ ΑΠΟΘΗΚΗΣ & ΙΣΟΓΕΙΟΥ ΣΤΕΓΑΣΤΡΟΥ - ROSITSA DONEVA - ΜΟΥΔΡΟΣΑΔΑ: ΨΠΚΖΩΛΘ-ΔΓ0

Πρώτη σελίδα του εγγράφου

Η απόφαση με ΑΔΑ ΨΠΚΖΩΛΘ-ΔΓ0 δημοσιεύθηκε από την υπηρεσία Δήμος Λήμνου » ΠΟΛΕΟΔΟΜΙΑ στις 2018-11-19. Ο τύπος της απόφασης είναι Άγνωστος και την υπέγραψε ο/η .

Χορήγηση – αναστολή – τροποποίηση οικ...
5501
ΠΡΑΞΗ
Επιστροφή στην προηγούμενη σελίδα