Αναζήτηση στη Δι@ύγεια για:  Τεχνικό
3. Ψήφιση Τεχνικού Προγράμματος Δήμου Παγγαίου για το οικονομικό έτος 2019 Δήμος ΠαγγαίουΔΗΜΟΤΙΚΟ ΣΥΜΒΟΥΛΙΟ2018-10-16
4. 5η Τροποποίηση Τεχνικού Προγράμματος Δήμου Παγγαίου έτους 2018 Δήμος ΠαγγαίουΔΗΜΟΤΙΚΟ ΣΥΜΒΟΥΛΙΟ2018-10-08
6. 6η Τροποποίηση Τεχνικού Προγράμματος Δήμου Παγγαίου έτους 2018 Δήμος ΠαγγαίουΔΗΜΟΤΙΚΟ ΣΥΜΒΟΥΛΙΟ2018-11-23
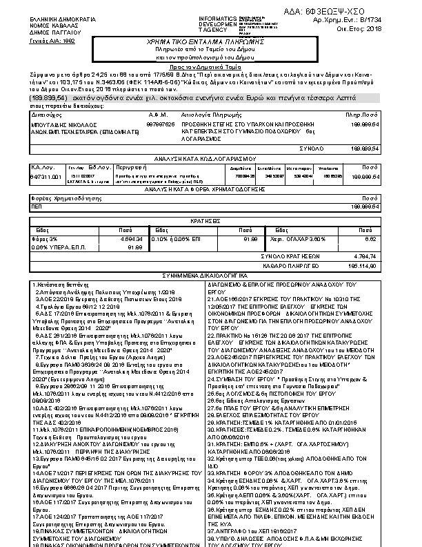
8. ΠΡΟΣΘΗΚΗ ΣΤΕΓΗΣ ΣΤΟ ΥΠΑΡΧΟΝ ΚΑΙ ΠΡΟΣΘΗΚΗ ΚΑΤ΄ΕΠΕΚΤΑΣΗ ΣΤΟ ΓΥΜΝΑΣΙΟ ΠΟΔΟΧΩΡΙΟΥ - 5ος ΛΟΓΑΡΙΑΣΜΟΣ Δήμος ΠαγγαίουΔΙΕΥΘΥΝΣΗ ΟΙΚΟΝΟΜΙΚΟΥ2018-12-17
9. 7η Τροποποίηση Τεχνικού Προγράμματος Δήμου Παγγαίου έτους 2018 Δήμος ΠαγγαίουΔΗΜΟΤΙΚΟ ΣΥΜΒΟΥΛΙΟ2018-12-18