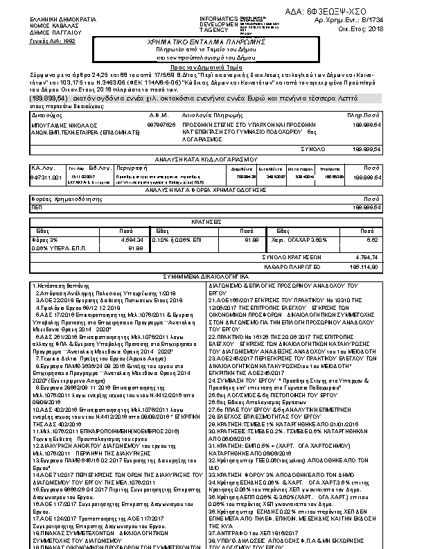
ΠΡΟΣΘΗΚΗ ΣΤΕΓΗΣ ΣΤΟ ΥΠΑΡΧΟΝ ΚΑΙ ΠΡΟΣΘΗΚΗ ΚΑΤ΄ΕΠΕΚΤΑΣΗ ΣΤΟ ΓΥΜΝΑΣΙΟ ΠΟΔΟΧΩΡΙΟΥ - 5ος ΛΟΓΑΡΙΑΣΜΟΣΑΔΑ: 6Φ3ΕΩΞΨ-ΧΣΟ

Πρώτη σελίδα του εγγράφου

Η απόφαση με ΑΔΑ 6Φ3ΕΩΞΨ-ΧΣΟ δημοσιεύθηκε από την υπηρεσία Δήμος Παγγαίου » ΔΙΕΥΘΥΝΣΗ ΟΙΚΟΝΟΜΙΚΟΥ στις 2018-12-17. Ο τύπος της απόφασης είναι Άγνωστος και την υπέγραψε ο/η Πρόεδρος ΖΑΧΟΠΟΥΛΟΥ, ΒΑΣΙΛΙΚΗ, Πρόεδρος, .

ΠΡΑΞΗ
Επιστροφή στην προηγούμενη σελίδα