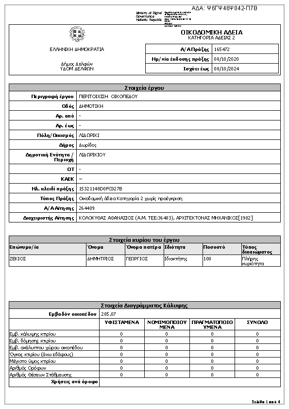
Οικοδομική άδεια Κατηγορία 2 χωρίς προέγκριση: ΠΕΡΙΤΟΙΧΙΣΗ ΟΙΚΟΠΕΔΟΥΑΔΑ: Ψ6ΓΨ46Ψ842-Π7Β

Πρώτη σελίδα του εγγράφου

Η απόφαση με ΑΔΑ Ψ6ΓΨ46Ψ842-Π7Β δημοσιεύθηκε από την υπηρεσία ΤΕΧΝΙΚΟ ΕΠΙΜΕΛΗΤΗΡΙΟ ΕΛΛΑΔΑΣ » ΔΙΕΥΘΥΝΣΗ ΕΠΑΓΓΕΛΜΑΤΙΚΗΣ ΔΡΑΣΤΗΡΙΟΤΗΤΑΣ στις 2020-10-08. Ο τύπος της απόφασης είναι Άγνωστος και την υπέγραψε ο/η .

Χορήγηση – αναστολή – τροποποίηση οικ...
3102
ΠΡΑΞΗ
Επιστροφή στην προηγούμενη σελίδα