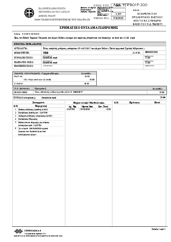
Τέλος υποβολής ρύθμισης αυθερέτων Ν. 4495/2017 του Δήμου Ρόδου ( Παλιό Δημοτικό Σχολείο ΜΑριτσών ) ΑΔΑ: ΨΠΡΒΩ1Ρ-2ΩΟ

Πρώτη σελίδα του εγγράφου

Η απόφαση με ΑΔΑ ΨΠΡΒΩ1Ρ-2ΩΟ δημοσιεύθηκε από την υπηρεσία Δήμος Ρόδου » ΔΙΕΥΘΥΝΣΗ ΟΙΚΟΝΟΜΙΚΩΝ ΥΠΗΡΕΣΙΩΝ στις 2020-10-07. Ο τύπος της απόφασης είναι Άγνωστος και την υπέγραψε ο/η an unknown person.

ΠΡΑΞΗ
Επιστροφή στην προηγούμενη σελίδα