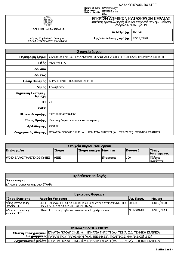
Έγκριση δομικών κατασκευών κεραίας: ΣΤΑΘΜΟΣ ΡΑΔΙΟΕΠΙΚΟΙΝΩΝΙΑΣ «ΧΑΛΚΗΔΟΝΑ CITY-T -1204359» (ΝΟΜΙΜΟΠΟΙΗΣΗ) ΑΔΑ: 9Ο6246Ψ842-ΙΞΞ

Πρώτη σελίδα του εγγράφου

Η απόφαση με ΑΔΑ 9Ο6246Ψ842-ΙΞΞ δημοσιεύθηκε από την υπηρεσία ΤΕΧΝΙΚΟ ΕΠΙΜΕΛΗΤΗΡΙΟ ΕΛΛΑΔΑΣ » ΔΙΕΥΘΥΝΣΗ ΕΠΑΓΓΕΛΜΑΤΙΚΗΣ ΔΡΑΣΤΗΡΙΟΤΗΤΑΣ στις 2020-10-02. Ο τύπος της απόφασης είναι Άγνωστος και την υπέγραψε ο/η .

Χορήγηση – αναστολή – τροποποίηση οικ...
0713
ΠΡΑΞΗ
Επιστροφή στην προηγούμενη σελίδα