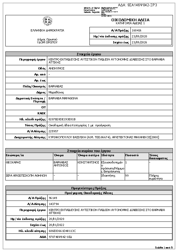
Οικοδομική άδεια Κατηγορίας 1 με προέγκριση: ΚΕΝΤΡΟ ΕΚΠΑΙΔΕΥΣΗΣ ΑΥΤΙΣΤΙΚΩΝ ΠΑΙΔΙΩΝ ΑΥΤΟΝΟΜΗΣ ΔΙΑΒΙΩΣΗΣ ΣΤΟ ΒΑΡΝΑΒΑ ΑΤΤΙΚΗΣ ΑΔΑ: 9ΣΑ146Ψ842-ΞΡ3

Πρώτη σελίδα του εγγράφου

Η απόφαση με ΑΔΑ 9ΣΑ146Ψ842-ΞΡ3 δημοσιεύθηκε από την υπηρεσία ΤΕΧΝΙΚΟ ΕΠΙΜΕΛΗΤΗΡΙΟ ΕΛΛΑΔΑΣ » ΔΙΕΥΘΥΝΣΗ ΕΠΑΓΓΕΛΜΑΤΙΚΗΣ ΔΡΑΣΤΗΡΙΟΤΗΤΑΣ στις 2020-09-23. Ο τύπος της απόφασης είναι Άγνωστος και την υπέγραψε ο/η .

Χορήγηση – αναστολή – τροποποίηση οικ...
4906
ΠΡΑΞΗ
Επιστροφή στην προηγούμενη σελίδα