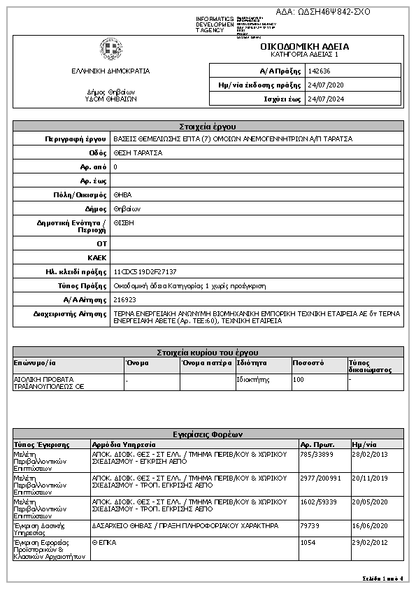
Οικοδομική άδεια Κατηγορίας 1 χωρίς προέγκριση: ΒΑΣΕΙΣ ΘΕΜΕΛΙΩΣΗΣ ΕΠΤΑ (7) ΟΜΟΙΩΝ ΑΝΕΜΟΓΕΝΝΗΤΡΙΩΝ Α/Π ΤΑΡΑΤΣΑΑΔΑ: ΩΔΣΗ46Ψ842-ΣΧΟ

Πρώτη σελίδα του εγγράφου

Η απόφαση με ΑΔΑ ΩΔΣΗ46Ψ842-ΣΧΟ δημοσιεύθηκε από την υπηρεσία ΤΕΧΝΙΚΟ ΕΠΙΜΕΛΗΤΗΡΙΟ ΕΛΛΑΔΑΣ » ΔΙΕΥΘΥΝΣΗ ΕΠΑΓΓΕΛΜΑΤΙΚΗΣ ΔΡΑΣΤΗΡΙΟΤΗΤΑΣ στις 2020-07-24. Ο τύπος της απόφασης είναι Άγνωστος και την υπέγραψε ο/η .

Χορήγηση – αναστολή – τροποποίηση οικ...
2804
ΠΡΑΞΗ
Επιστροφή στην προηγούμενη σελίδα