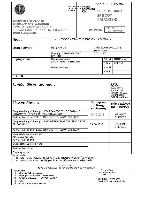
ΙΣΟΓΕΙΟ ΜΕΤΑΛΛΙΚΟ ΚΤΙΡΙΟ - ΚΑΤΑΣΤΗΜΑΑΔΑ: ΨΒΞΕΩΨΔ-ΜΙ4

Πρώτη σελίδα του εγγράφου

Η απόφαση με ΑΔΑ ΨΒΞΕΩΨΔ-ΜΙ4 δημοσιεύθηκε από την υπηρεσία Δήμος Άργους - Μυκηνών » ΤΜΗΜΑ ΠΟΛΕΟΔΟΜΙΑΣ στις 2020-07-16. Ο τύπος της απόφασης είναι Άγνωστος και την υπέγραψε ο/η .

ΠΡΑΞΗ
Επιστροφή στην προηγούμενη σελίδα