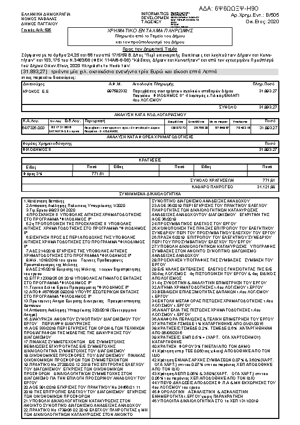
Παρεμβάσεις συντηρήσεων σχολικών υποδομών Δήμου Παγγαίου - ΦΙΛΟΔΗΜΟΣ ΙΙ * 4 λογ/σμός κ.Τελικός/ΕΝΑΝΤΙ 4ου ΛΟΓ/ΣΜΟΥΑΔΑ: 6Ψ6ΩΩΞΨ-Η9Ο

Πρώτη σελίδα του εγγράφου

Η απόφαση με ΑΔΑ 6Ψ6ΩΩΞΨ-Η9Ο δημοσιεύθηκε από την υπηρεσία Δήμος Παγγαίου » ΔΙΕΥΘΥΝΣΗ ΟΙΚΟΝΟΜΙΚΟΥ στις 2020-04-27. Ο τύπος της απόφασης είναι Άγνωστος και την υπέγραψε ο/η Πρόεδρος ΖΑΧΟΠΟΥΛΟΥ, ΒΑΣΙΛΙΚΗ, Πρόεδρος, .

ΠΡΑΞΗ
Επιστροφή στην προηγούμενη σελίδα