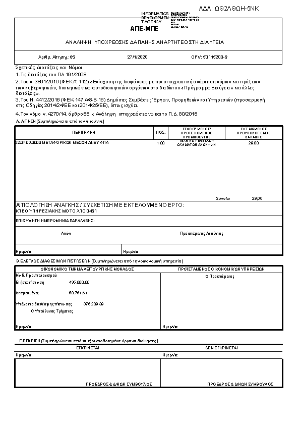
ΑΝΑΛΗΨΗ ΥΠΟΧΡΕΩΣΗΣ ΔΑΠΑΝΗΣ ΓΙΑ ΤΕΧΝΙΚΟ ΕΛΕΓΧΟ (ΚΤΕΟ) ΥΠΗΡΕΣΙΑΚΗΣ ΜΟΤΟΣΙΚΛΕΤΑΣ. ΑΡ. ΑΙΤ. 65ΑΔΑ: ΩΘ2ΛΘΩΗ-5ΝΚ

Πρώτη σελίδα του εγγράφου

Η απόφαση με ΑΔΑ ΩΘ2ΛΘΩΗ-5ΝΚ δημοσιεύθηκε από την υπηρεσία ΑΘΗΝΑΙΚΟ ΠΡΑΚΤΟΡΕΙΟ ΕΙΔΗΣΕΩΝ - ΜΑΚΕΔΟΝΙΚΟ ΠΡΑΚΤΟΡΕΙΟ ΕΙΔΗΣΕΩΝ ΑΕ » ΠΡΟΕΔΡΟΣ- ΓΕΝΙΚΟΣ ΔΙΕΥΘΥΝΤΗΣ στις 2020-01-27. Ο τύπος της απόφασης είναι Άγνωστος και την υπέγραψε ο/η an unknown person.

Τακτικός Προϋπολογισμός
ΠΡΑΞΗ
Επιστροφή στην προηγούμενη σελίδα