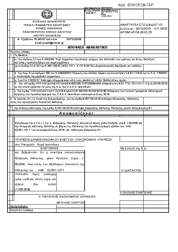
ΑΝΑΚΛΗΤΙΚΗ ΑΠΟΦΑΣΗ 26-2019ΑΔΑ: 67ΙΘΟΡΞΜ-ΓΑΡ

Πρώτη σελίδα του εγγράφου

Η απόφαση με ΑΔΑ 67ΙΘΟΡΞΜ-ΓΑΡ δημοσιεύθηκε από την υπηρεσία ΠΑΝΗΠΕΙΡΩΤΙΚΟ ΕΘΝΙΚΟ ΑΘΛΗΤΙΚΟ ΚΕΝΤΡΟ ΙΩΑΝΝΙΝΩΝ » ΕΠΙΤΡΟΠΗ ΔΙΟΙΚΗΣΗΣ στις 2019-12-30. Ο τύπος της απόφασης είναι Άγνωστος και την υπέγραψε ο/η an unknown person.

Πράξη Οργάνου Διοίκησης Ν.Π.Δ.Δ.
στο κατάστημα της υπηρεσίας
ΠΡΑΞΗ
Επιστροφή στην προηγούμενη σελίδα