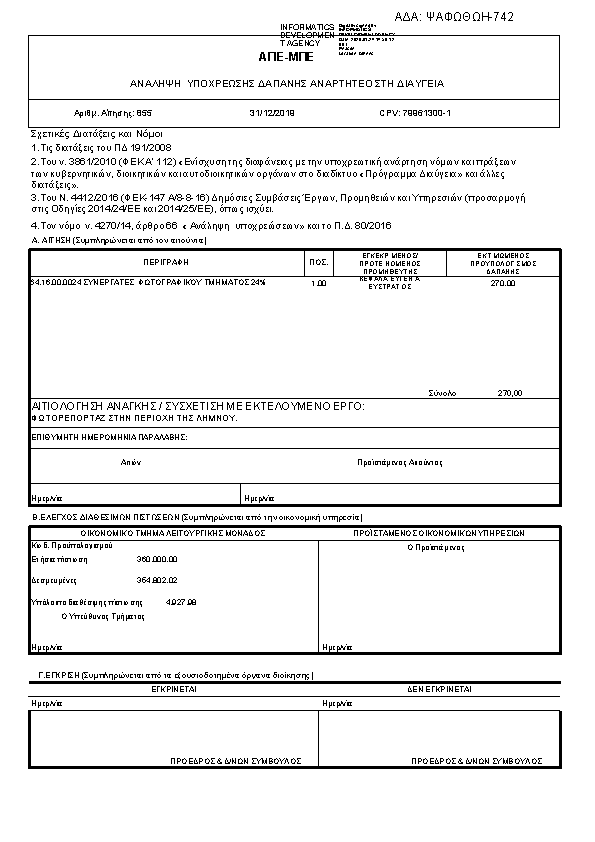
ΑΝΑΛΗΨΗ ΥΠΟΧΡΕΩΣΗΣ ΥΠΗΡΕΣΙΑΣ ΦΩΤΟΡΕΠΟΡΤΑΖ ΣΤΗΝ ΠΕΡΙΟΧΗ ΤΗΣ ΛΗΜΝΟΥ. ΑΡ. ΑΙΤ. 855ΑΔΑ: ΨΑΦΩΘΩΗ-742

Πρώτη σελίδα του εγγράφου

Η απόφαση με ΑΔΑ ΨΑΦΩΘΩΗ-742 δημοσιεύθηκε από την υπηρεσία ΑΘΗΝΑΙΚΟ ΠΡΑΚΤΟΡΕΙΟ ΕΙΔΗΣΕΩΝ - ΜΑΚΕΔΟΝΙΚΟ ΠΡΑΚΤΟΡΕΙΟ ΕΙΔΗΣΕΩΝ ΑΕ » ΠΡΟΕΔΡΟΣ- ΓΕΝΙΚΟΣ ΔΙΕΥΘΥΝΤΗΣ στις 2019-12-31. Ο τύπος της απόφασης είναι Άγνωστος και την υπέγραψε ο/η an unknown person.

Τακτικός Προϋπολογισμός
ΠΡΑΞΗ
Επιστροφή στην προηγούμενη σελίδα