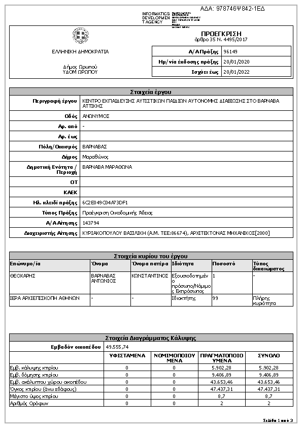
Προέγκριση Οικοδομικής Άδειας: ΚΕΝΤΡΟ ΕΚΠΑΙΔΕΥΣΗΣ ΑΥΤΙΣΤΙΚΩΝ ΠΑΙΔΙΩΝ ΑΥΤΟΝΟΜΗΣ ΔΙΑΒΙΩΣΗΣ ΣΤΟ ΒΑΡΝΑΒΑ ΑΤΤΙΚΗΣ ΑΔΑ: 978746Ψ842-1ΕΔ

Πρώτη σελίδα του εγγράφου

Η απόφαση με ΑΔΑ 978746Ψ842-1ΕΔ δημοσιεύθηκε από την υπηρεσία ΤΕΧΝΙΚΟ ΕΠΙΜΕΛΗΤΗΡΙΟ ΕΛΛΑΔΑΣ » ΔΙΕΥΘΥΝΣΗ ΕΠΑΓΓΕΛΜΑΤΙΚΗΣ ΔΡΑΣΤΗΡΙΟΤΗΤΑΣ στις 2020-01-20. Ο τύπος της απόφασης είναι Άγνωστος και την υπέγραψε ο/η .

Χορήγηση – αναστολή – τροποποίηση οικ...
4906
ΠΡΑΞΗ
Επιστροφή στην προηγούμενη σελίδα