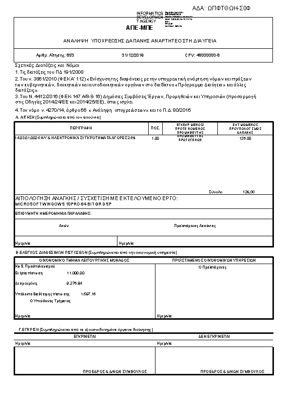
ΑΝΑΛΗΨΗ ΥΠΟΧΡΕΩΣΗΣ ΠΡΟΜΗΘΕΙΑΣ MICROSOFT WINDOWS 10PRO 64-BIT GR DSP ΑΡ. ΑΙΤ. 853ΑΔΑ: ΩΠΦΤΘΩΗ-Σ0Φ

Πρώτη σελίδα του εγγράφου

Η απόφαση με ΑΔΑ ΩΠΦΤΘΩΗ-Σ0Φ δημοσιεύθηκε από την υπηρεσία ΑΘΗΝΑΙΚΟ ΠΡΑΚΤΟΡΕΙΟ ΕΙΔΗΣΕΩΝ - ΜΑΚΕΔΟΝΙΚΟ ΠΡΑΚΤΟΡΕΙΟ ΕΙΔΗΣΕΩΝ ΑΕ » ΠΡΟΕΔΡΟΣ- ΓΕΝΙΚΟΣ ΔΙΕΥΘΥΝΤΗΣ στις 2019-12-31. Ο τύπος της απόφασης είναι Άγνωστος και την υπέγραψε ο/η an unknown person.

Τακτικός Προϋπολογισμός
ΠΡΑΞΗ
Επιστροφή στην προηγούμενη σελίδα