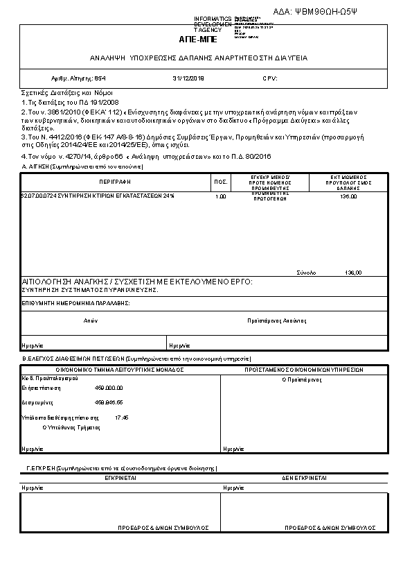
ΑΝΑΛΗΨΗ ΥΠΟΧΡΕΩΣΗΣ ΥΠΗΡΕΣΙΑΣ ΣΥΝΤΗΡΗΣΗΣ ΣΥΣΤΗΜΑΤΟΣ ΠΥΡΑΝΙΧΝΕΥΣΗΣ ΑΡ. ΑΙΤ. 854ΑΔΑ: ΨΒΜ9ΘΩΗ-Ω5Ψ

Πρώτη σελίδα του εγγράφου

Η απόφαση με ΑΔΑ ΨΒΜ9ΘΩΗ-Ω5Ψ δημοσιεύθηκε από την υπηρεσία ΑΘΗΝΑΙΚΟ ΠΡΑΚΤΟΡΕΙΟ ΕΙΔΗΣΕΩΝ - ΜΑΚΕΔΟΝΙΚΟ ΠΡΑΚΤΟΡΕΙΟ ΕΙΔΗΣΕΩΝ ΑΕ » ΠΡΟΕΔΡΟΣ- ΓΕΝΙΚΟΣ ΔΙΕΥΘΥΝΤΗΣ στις 2019-12-31. Ο τύπος της απόφασης είναι Άγνωστος και την υπέγραψε ο/η an unknown person.

Τακτικός Προϋπολογισμός
ΠΡΑΞΗ
Επιστροφή στην προηγούμενη σελίδα