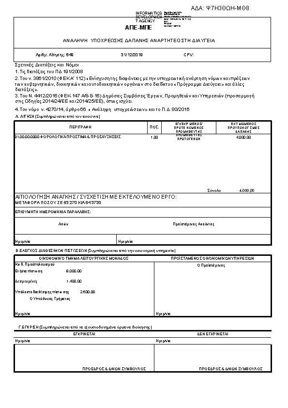
ΑΝΑΛΗΨΗ ΥΠΟΧΡΕΩΣΗΣ. ΑΡ.ΑΙΤ. 849ΑΔΑ: Ψ7Η3ΘΩΗ-ΜΘ8

Πρώτη σελίδα του εγγράφου

Η απόφαση με ΑΔΑ Ψ7Η3ΘΩΗ-ΜΘ8 δημοσιεύθηκε από την υπηρεσία ΑΘΗΝΑΙΚΟ ΠΡΑΚΤΟΡΕΙΟ ΕΙΔΗΣΕΩΝ - ΜΑΚΕΔΟΝΙΚΟ ΠΡΑΚΤΟΡΕΙΟ ΕΙΔΗΣΕΩΝ ΑΕ » ΠΡΟΕΔΡΟΣ- ΓΕΝΙΚΟΣ ΔΙΕΥΘΥΝΤΗΣ στις 2019-12-31. Ο τύπος της απόφασης είναι Άγνωστος και την υπέγραψε ο/η an unknown person.

Τακτικός Προϋπολογισμός
ΠΡΑΞΗ
Επιστροφή στην προηγούμενη σελίδα