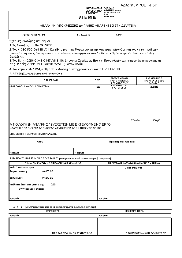
ΑΝΑΛΗΨΗ ΥΠΟΧΡΕΩΣΗΣ ΑΡ. ΑΙΤ. 851ΑΔΑ: Ψ0ΜΡΘΩΗ-Ρ6Ρ

Πρώτη σελίδα του εγγράφου

Η απόφαση με ΑΔΑ Ψ0ΜΡΘΩΗ-Ρ6Ρ δημοσιεύθηκε από την υπηρεσία ΑΘΗΝΑΙΚΟ ΠΡΑΚΤΟΡΕΙΟ ΕΙΔΗΣΕΩΝ - ΜΑΚΕΔΟΝΙΚΟ ΠΡΑΚΤΟΡΕΙΟ ΕΙΔΗΣΕΩΝ ΑΕ » ΠΡΟΕΔΡΟΣ- ΓΕΝΙΚΟΣ ΔΙΕΥΘΥΝΤΗΣ στις 2019-12-31. Ο τύπος της απόφασης είναι Άγνωστος και την υπέγραψε ο/η an unknown person.

Τακτικός Προϋπολογισμός
ΠΡΑΞΗ
Επιστροφή στην προηγούμενη σελίδα