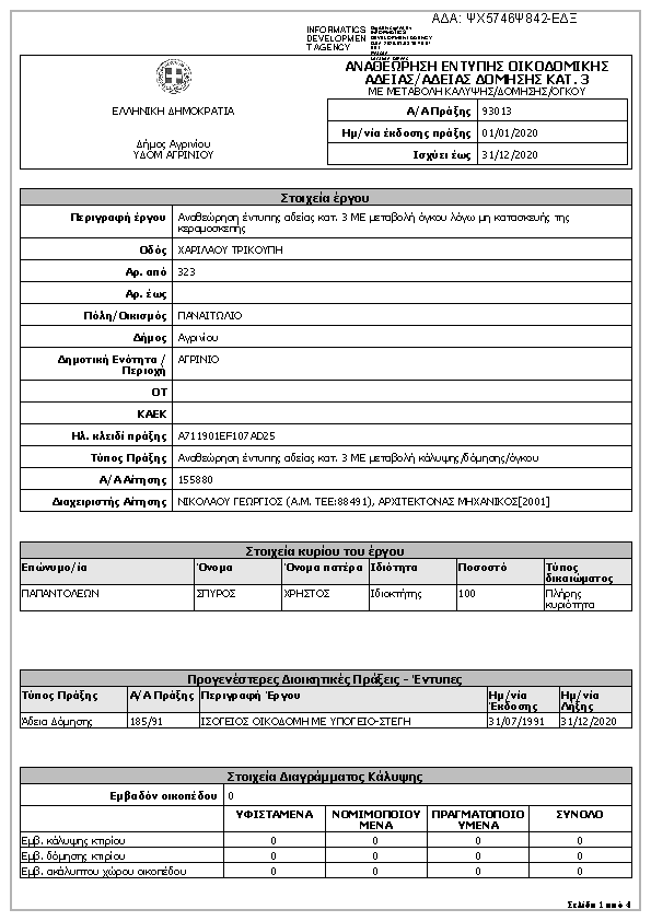
Αναθεώρηση έντυπης αδείας κατ. 3 ΜΕ μεταβολή κάλυψης/δόμησης/όγκου: Αναθεώρηση έντυπης αδείας κατ. 3 ΜΕ μεταβολή όγκου λόγω μη κατασκευής της κεραμοσκεπήςΑΔΑ: ΨΧ5746Ψ842-ΕΔΞ

Πρώτη σελίδα του εγγράφου

Η απόφαση με ΑΔΑ ΨΧ5746Ψ842-ΕΔΞ δημοσιεύθηκε από την υπηρεσία ΤΕΧΝΙΚΟ ΕΠΙΜΕΛΗΤΗΡΙΟ ΕΛΛΑΔΑΣ » ΔΙΕΥΘΥΝΣΗ ΕΠΑΓΓΕΛΜΑΤΙΚΗΣ ΔΡΑΣΤΗΡΙΟΤΗΤΑΣ στις 2020-01-01. Ο τύπος της απόφασης είναι Άγνωστος και την υπέγραψε ο/η .

Χορήγηση – αναστολή – τροποποίηση οικ...
3803
ΠΡΑΞΗ
Επιστροφή στην προηγούμενη σελίδα