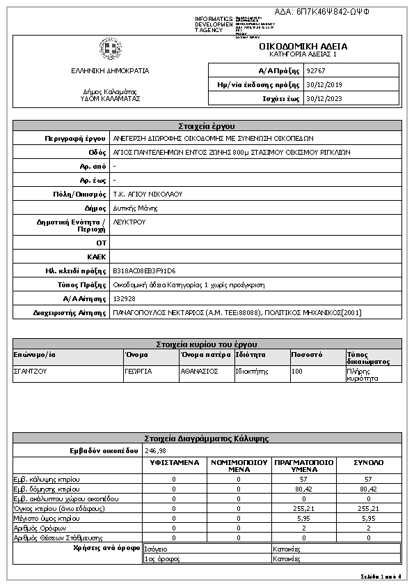
Οικοδομική άδεια Κατηγορίας 1 χωρίς προέγκριση: ΑΝΕΓΕΡΣΗ ΔΙΩΡΟΦΗΣ ΟΙΚΟΔΟΜΗΣ ΜΕ ΣΥΝΕΝΩΣΗ ΟΙΚΟΠΕΔΩΝΑΔΑ: 6Π7Κ46Ψ842-ΩΨΦ

Πρώτη σελίδα του εγγράφου

Η απόφαση με ΑΔΑ 6Π7Κ46Ψ842-ΩΨΦ δημοσιεύθηκε από την υπηρεσία ΤΕΧΝΙΚΟ ΕΠΙΜΕΛΗΤΗΡΙΟ ΕΛΛΑΔΑΣ » ΔΙΕΥΘΥΝΣΗ ΕΠΑΓΓΕΛΜΑΤΙΚΗΣ ΔΡΑΣΤΗΡΙΟΤΗΤΑΣ στις 2019-12-30. Ο τύπος της απόφασης είναι Άγνωστος και την υπέγραψε ο/η .

Χορήγηση – αναστολή – τροποποίηση οικ...
4402
ΠΡΑΞΗ
Επιστροφή στην προηγούμενη σελίδα