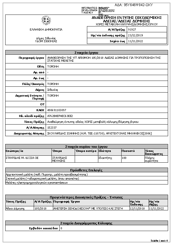
Αναθεώρηση έντυπης αδείας ΧΩΡΙΣ μεταβολή κάλυψης/δόμησης/όγκου: ΑΝΑΘΕΩΡΗΣΗ ΤΗΣ ΥΠ' ΑΡΙΘΜΟΝ 105/2018 ΑΔΕΙΑΣ ΔΟΜΗΣΗΣ ΓΙΑ ΤΡΟΠΟΠΟΙΗΣΗ ΤΗΣ ΣΤΑΤΙΚΗΣ ΜΕΛΕΤΗΣΑΔΑ: 95Υ646Ψ842-ΩΚΥ

Πρώτη σελίδα του εγγράφου

Η απόφαση με ΑΔΑ 95Υ646Ψ842-ΩΚΥ δημοσιεύθηκε από την υπηρεσία ΤΕΧΝΙΚΟ ΕΠΙΜΕΛΗΤΗΡΙΟ ΕΛΛΑΔΑΣ » ΔΙΕΥΘΥΝΣΗ ΕΠΑΓΓΕΛΜΑΤΙΚΗΣ ΔΡΑΣΤΗΡΙΟΤΗΤΑΣ στις 2019-12-23. Ο τύπος της απόφασης είναι Άγνωστος και την υπέγραψε ο/η .

Χορήγηση – αναστολή – τροποποίηση οικ...
1305
ΠΡΑΞΗ
Επιστροφή στην προηγούμενη σελίδα