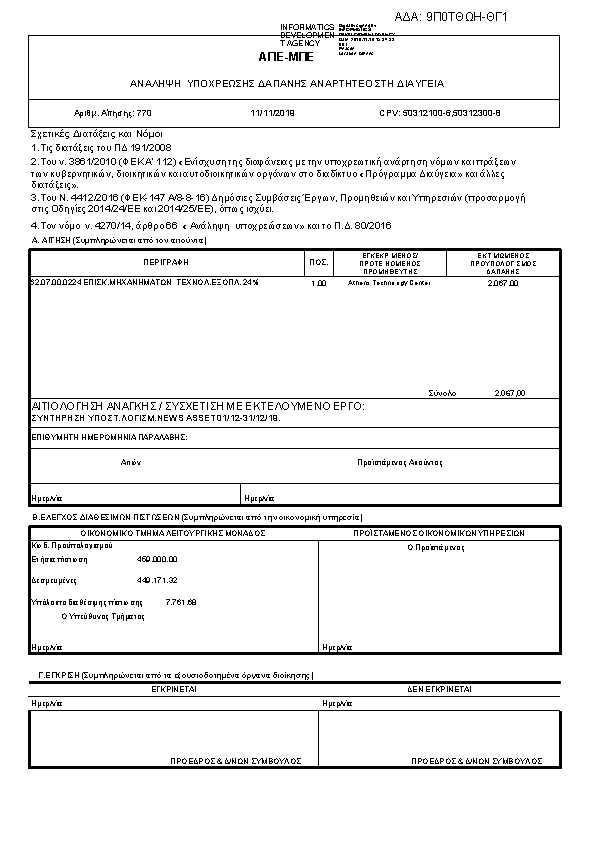
Συντήρηση – υποστήριξη του ολοκληρωμένου πληροφορικού συστήματος διαχείρισης ειδήσεων του ΑΠΕ-ΜΠΕ (NewsAsset) για ένα μήνα (01/12/2019-31/12/2019).ΑΔΑ: 9Π0ΤΘΩΗ-ΘΓ1

Πρώτη σελίδα του εγγράφου

Η απόφαση με ΑΔΑ 9Π0ΤΘΩΗ-ΘΓ1 δημοσιεύθηκε από την υπηρεσία ΑΘΗΝΑΙΚΟ ΠΡΑΚΤΟΡΕΙΟ ΕΙΔΗΣΕΩΝ - ΜΑΚΕΔΟΝΙΚΟ ΠΡΑΚΤΟΡΕΙΟ ΕΙΔΗΣΕΩΝ ΑΕ » ΠΡΟΕΔΡΟΣ- ΓΕΝΙΚΟΣ ΔΙΕΥΘΥΝΤΗΣ στις 2019-11-11. Ο τύπος της απόφασης είναι Άγνωστος και την υπέγραψε ο/η an unknown person.

Τακτικός Προϋπολογισμός
770
ΠΡΑΞΗ
Επιστροφή στην προηγούμενη σελίδα