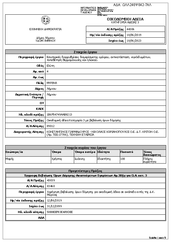
Οικοδομική άδεια Κατηγορία 3 με βεβαίωση όρων δόμησης: Εσωτερικές διαρρυθμίσεις διαμερίσματος ορόφου, αντικατάσταση κιγκλιδωμάτων, τοποθέτηση θερμομόνωσης και ηλιακού.ΑΔΑ: ΩΛΛ246Ψ842-7ΑΛ

Πρώτη σελίδα του εγγράφου

Η απόφαση με ΑΔΑ ΩΛΛ246Ψ842-7ΑΛ δημοσιεύθηκε από την υπηρεσία ΤΕΧΝΙΚΟ ΕΠΙΜΕΛΗΤΗΡΙΟ ΕΛΛΑΔΑΣ » ΔΙΕΥΘΥΝΣΗ ΕΠΑΓΓΕΛΜΑΤΙΚΗΣ ΔΡΑΣΤΗΡΙΟΤΗΤΑΣ στις 2019-06-18. Ο τύπος της απόφασης είναι Άγνωστος και την υπέγραψε ο/η .

Χορήγηση – αναστολή – τροποποίηση οικ...
5501
ΠΡΑΞΗ
Επιστροφή στην προηγούμενη σελίδα