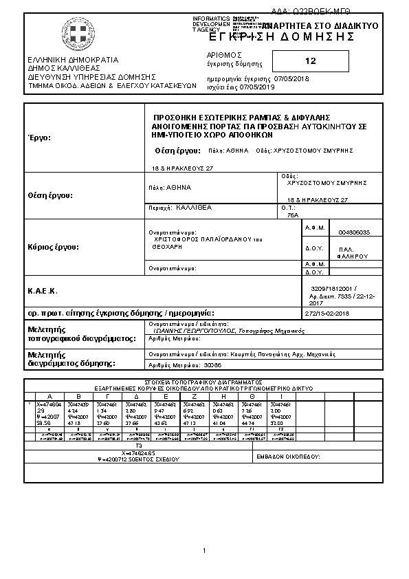
ΠΡΟΣΘΗΚΗ ΕΣΩΤΕΡΙΚΗΣ ΡΑΜΠΑΣ & ΔΙΦΥΛΛΗΣ ΑΝΟΙΓΟΜΕΝΗΣ ΠΟΡΤΑΣ ΓΙΑ ΠΡΟΣΒΑΣH AYTOKINHTOY ΣΕ ΗΜΙ-ΥΠΟΓΕΙΟ ΧΩΡΟ ΑΠΟΘΗΚΩΝΑΔΑ: Ω22ΒΩΕΚ-ΜΓΘ

Πρώτη σελίδα του εγγράφου

Η απόφαση με ΑΔΑ Ω22ΒΩΕΚ-ΜΓΘ δημοσιεύθηκε από την υπηρεσία Δήμος Καλλιθέας » ΔΙΕΥΘΥΝΣΗ ΥΠΗΡΕΣΙΑΣ ΔΟΜΗΣΗΣ στις 2019-02-13. Ο τύπος της απόφασης είναι Άγνωστος και την υπέγραψε ο/η .

Χορήγηση – αναστολή – τροποποίηση οικ...
4801
ΠΡΑΞΗ
Επιστροφή στην προηγούμενη σελίδα