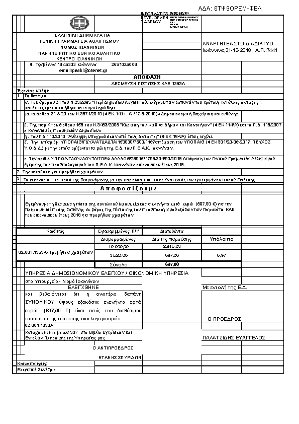
ΑΝΑΛΗΨΗΑΔΑ: 6ΤΨ9ΟΡΞΜ-ΦΒΛ

Πρώτη σελίδα του εγγράφου

Η απόφαση με ΑΔΑ 6ΤΨ9ΟΡΞΜ-ΦΒΛ δημοσιεύθηκε από την υπηρεσία ΠΑΝΗΠΕΙΡΩΤΙΚΟ ΕΘΝΙΚΟ ΑΘΛΗΤΙΚΟ ΚΕΝΤΡΟ ΙΩΑΝΝΙΝΩΝ » ΕΠΙΤΡΟΠΗ ΔΙΟΙΚΗΣΗΣ στις 2018-12-31. Ο τύπος της απόφασης είναι Άγνωστος και την υπέγραψε ο/η an unknown person.

Τακτικός Προϋπολογισμός
337
ΠΡΑΞΗ
Επιστροφή στην προηγούμενη σελίδα