ΑΝΑΛΗΨΗΑΔΑ: Ε415ΟΡΞΜ-2ΔΣ

Πρώτη σελίδα του εγγράφου

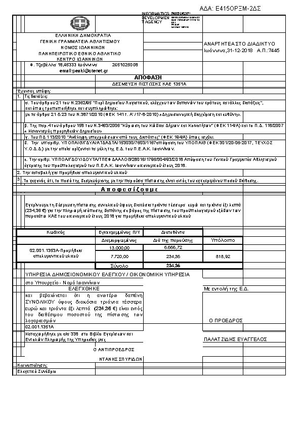
Η απόφαση με ΑΔΑ Ε415ΟΡΞΜ-2ΔΣ δημοσιεύθηκε από την υπηρεσία ΠΑΝΗΠΕΙΡΩΤΙΚΟ ΕΘΝΙΚΟ ΑΘΛΗΤΙΚΟ ΚΕΝΤΡΟ ΙΩΑΝΝΙΝΩΝ » ΕΠΙΤΡΟΠΗ ΔΙΟΙΚΗΣΗΣ στις 2018-12-31. Ο τύπος της απόφασης είναι Άγνωστος και την υπέγραψε ο/η an unknown person.

Τακτικός Προϋπολογισμός
338
ΠΡΑΞΗ
Επιστροφή στην προηγούμενη σελίδα