ΕΝΗΜΕΡΩΣΗ ΤΗΣ 26/17 ΑΔΕΙΑ ΔΟΜΗΣΗΣΑΔΑ: ΩΞΓ4ΩΕ6-Α7Λ

Πρώτη σελίδα του εγγράφου

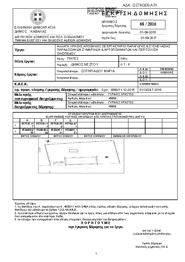
Η απόφαση με ΑΔΑ ΩΞΓ4ΩΕ6-Α7Λ δημοσιεύθηκε από την υπηρεσία Δήμος Καβάλας » ΤΜΗΜΑ ΕΚΔΟΣΗΣ ΟΙΚΟΔΟΜΙΚΩΝ ΑΔΕΙΩΝ στις 2018-12-12. Ο τύπος της απόφασης είναι Άγνωστος και την υπέγραψε ο/η .

Χορήγηση – αναστολή – τροποποίηση οικ...
0501
ΠΡΑΞΗ
Επιστροφή στην προηγούμενη σελίδα