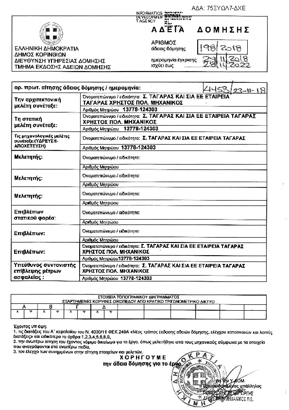
ΑΔΕΙΑ ΔΟΜΗΣΗΣ ΓΙΑ ΝΟΜΙΜΟΠΟΙΗΣΗ ΣΟΦΙΤΑΣ, ΕΞΩΤΕΡΙΚΗΣ ΣΚΑΛΑΣ ΥΠΟΓΕΙΟΥ, ΔΙΑΡΡΥΘΜΙΣΕΩΝ ΣΤΟΝ ΥΠΟΓΕΙΟ ΒΟΗΘΗΤΙΚΟ ΧΩΡΟ ΚΑΙ ΚΑΤΑΣΚΕΥΗ ΛΟΥΤΡΟΥ ΚΑΙ ΔΙΑΜΟΡΦΩΣΗ ΠΕΡΙΒΑΛΛΟΝΤΟΣ ΧΩΡΟΥΑΔΑ: 75ΞΥΩΛ7-ΔΧΕ

Πρώτη σελίδα του εγγράφου

Η απόφαση με ΑΔΑ 75ΞΥΩΛ7-ΔΧΕ δημοσιεύθηκε από την υπηρεσία Δήμος Κορινθίων » ΔΙΕΥΘΥΝΣΗ ΠΟΛΕΟΔΟΜΙΑΣ, ΑΣΤΙΚΗΣ ΑΝΑΠΤΥΞΗΣ ΚΑΙ ΠΕΡΙΒΑΛΛΟΝΤΟΣ στις 2018-11-29. Ο τύπος της απόφασης είναι Άγνωστος και την υπέγραψε ο/η .

Χορήγηση – αναστολή – τροποποίηση οικ...
ΠΡΑΞΗ
Επιστροφή στην προηγούμενη σελίδα