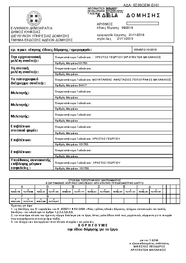
ΚΑΤΕΔΑΦΙΣΗ ΔΙΩΡΟΦΟΥ ΚΤΙΣΜΑΤΟΣ ΜΕΘ’ ΥΠΟΓΕΙΟΥΑΔΑ: 6Σ89ΩΕΜ-ΕΗΧ

Πρώτη σελίδα του εγγράφου

Η απόφαση με ΑΔΑ 6Σ89ΩΕΜ-ΕΗΧ δημοσιεύθηκε από την υπηρεσία Δήμος Κηφισιάς » ΥΠΗΡΕΣΙΑ ΔΟΜΗΣΗΣ στις 2018-11-21. Ο τύπος της απόφασης είναι Άγνωστος και την υπέγραψε ο/η .

Χορήγηση – αναστολή – τροποποίηση οικ...
4605
ΠΡΑΞΗ
Επιστροφή στην προηγούμενη σελίδα