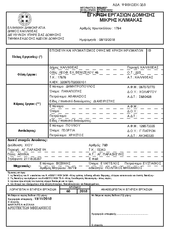
ΕΠΙΣΚΕΥΗ ΚΑΙ ΧΡΩΜΑΤΙΣΜΟΣ ΟΨΗΣ ΜΕ ΧΡΗΣΗ ΙΚΡΙΩΜΑΤΩΝΑΔΑ: ΨΦ8ΚΩΕΚ-3Δ9

Πρώτη σελίδα του εγγράφου

Η απόφαση με ΑΔΑ ΨΦ8ΚΩΕΚ-3Δ9 δημοσιεύθηκε από την υπηρεσία Δήμος Καλλιθέας » ΔΙΕΥΘΥΝΣΗ ΥΠΗΡΕΣΙΑΣ ΔΟΜΗΣΗΣ στις 2018-11-15. Ο τύπος της απόφασης είναι Άγνωστος και την υπέγραψε ο/η .

Χορήγηση – αναστολή – τροποποίηση οικ...
4801
ΠΡΑΞΗ
Επιστροφή στην προηγούμενη σελίδα