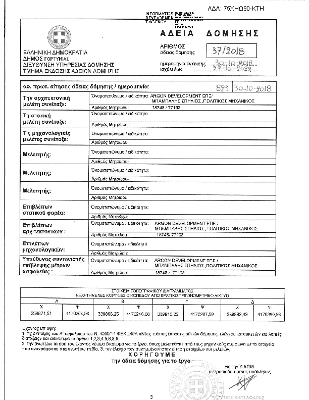
Η ΥΠ' ΑΡΙΘΜ. 37/2018 ΑΔΕΙΑ ΔΟΜΗΣΗΣΑΔΑ: 75ΧΗΩ90-ΚΤΗ

Πρώτη σελίδα του εγγράφου

Η απόφαση με ΑΔΑ 75ΧΗΩ90-ΚΤΗ δημοσιεύθηκε από την υπηρεσία Δήμος Γορτυνίας » ΔΗΜΟΣ ΓΟΡΤΥΝΙΑΣ στις 2018-10-30. Ο τύπος της απόφασης είναι Άγνωστος και την υπέγραψε ο/η .

Χορήγηση – αναστολή – τροποποίηση οικ...
4003
ΠΡΑΞΗ
Επιστροφή στην προηγούμενη σελίδα