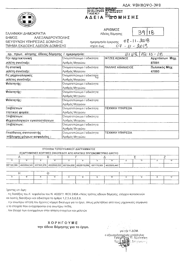
ΑΔΕΙΑ ΔΟΜΗΣΗΣ ΜΕ ΑΡΙΘΜΟ ΑΔΕΙΑΣ 39/18 ( ΚΑΤΕΔΑΦΙΣΗ )ΑΔΑ: ΨΒΚΦΩΨΟ-3Ψ8

Πρώτη σελίδα του εγγράφου

Η απόφαση με ΑΔΑ ΨΒΚΦΩΨΟ-3Ψ8 δημοσιεύθηκε από την υπηρεσία Δήμος Αλεξανδρούπολης » ΔΙΕΥΘΥΝΣΗ ΠΟΛΕΟΔΟΜΙΑΣ στις 2018-11-07. Ο τύπος της απόφασης είναι Άγνωστος και την υπέγραψε ο/η .

Χορήγηση – αναστολή – τροποποίηση οικ...
ΠΡΑΞΗ
Επιστροφή στην προηγούμενη σελίδα