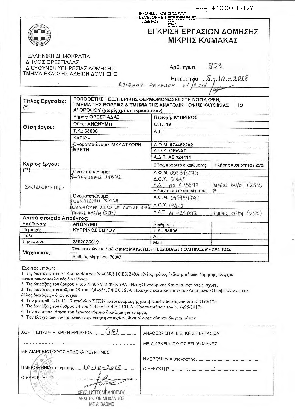
ΕΓΚΡΙΣΗ ΜΙΚΡΗΣ ΚΛΙΜΑΚΑΣ ΜΕ ΤΙΤΛΟ :ΤΟΠΟΘΕΤΗΣΗ ΕΞΩΤΕΡΙΚΗΣ ΘΕΡΜΟΜΟΝΩΣΗΣ ΣΤΗ ΝΟΤΙΑ ΟΨΗ, ΤΜΗΜΑ ΤΗΣ ΒΟΡΕΙΑΣ & ΤΜΗΜΑ ΤΗΣ ΑΝΑΤΟΛΙΚΗΣ ΟΨΗΣ ΚΑΤΟΙΚΙΑΣ Α΄ΟΡΟΦΟΥ ΧΩΡΙΣ ΧΡΗΣΗ ΙΚΡΙΩΜΑΤΩΝΑΔΑ: Ψ1ΘΟΩΞΒ-Τ2Υ

Πρώτη σελίδα του εγγράφου

Η απόφαση με ΑΔΑ Ψ1ΘΟΩΞΒ-Τ2Υ δημοσιεύθηκε από την υπηρεσία Δήμος Ορεστιάδας » ΤΜΗΜΑ ΕΚΔΟΣΗΣ ΟΙΚΟΔΟΜΙΚΩΝ ΑΔΕΙΩΝ στις 2018-10-11. Ο τύπος της απόφασης είναι Άγνωστος και την υπέγραψε ο/η .

Χορήγηση – αναστολή – τροποποίηση οικ...
0303
ΠΡΑΞΗ
Επιστροφή στην προηγούμενη σελίδα